Hendersonville Women’s Center Labor, Delivery, Recovery, and Postpartum (LDRP) unit and Neonatal Intensive Care Unit (NICU) Renovation
Barge Design Solutions Architecture, Interiors, Civil Engineering
Hendersonville Women’s Center renovation reimagined its Labor, Delivery, Recovery, and Postpartum (LDRP) unit and Neonatal Intensive Care Unit (NICU) into an integrated, family-centered environment that prioritizes well-being, comfort, and innovation in maternal and neonatal care. The childbirth journey is elevated through evidence-based design, clinical collaboration, and patient-focused research.
Project Statement
Hendersonville Women’s Center renovation reimagined its Labor, Delivery, Recovery, and Postpartum (LDRP) unit and Neonatal Intensive Care Unit (NICU) into an integrated, family-centered environment that prioritizes well-being, comfort, and innovation in maternal and neonatal care. This 31,800-square-foot transformation elevates the childbirth journey through evidence-based design, clinical collaboration, and patient-focused research, aligning with the AIA Framework for Design Excellence.
Childbirth is an experience marked by anticipation, anxiety, and profound joy. To create a reassuring first impression, expectant mothers and families are greeted by staff who provide immediate guidance and connect them with support and programs that build early-care confidence. The NICU and observation department are strategically located directly beneath labor and delivery, with a dedicated elevator providing rapid access when every second matters.
Discovery guided the design process, seeking to integrate a new generation of care with clinical function. Feedback from early evidence-based research and patient engagement trends shaped spaces that reflect the expectations of next-generation mothers, who value flexibility, comfort, and technology-enabled decision-making. Research revealed that natural light, soothing palettes, acoustic controls, and hospitality-inspired furnishings foster calm and healing, while clinical requirements are carefully balanced with patient dignity. Equipment is discreetly concealed within custom millwork, soft curves counter clinical austerity, and sound-treated private areas support privacy and respect.
Research-driven strategies shaped planning decisions. Insights into family-centered care, newborn health, and growing twin birth rates inspired an adaptable neonatal layout that supports co-regulation behaviors of twins while also supporting child safety, infection control, and independent clinical functions. Color selections consciously avoided tones that could distort skin visual assessments, improving clinical accuracy and newborn outcomes.
Wellness is addressed comprehensively for mothers, families, and staff. Waiting areas are designed with hospitality-inspired features for comfort, information access, and refreshments, allowing loved ones to remain close and comfortable throughout the birthing journey. Staff-focused spaces, including on-call rooms, lounges, and meeting areas acknowledge the importance of professional well-being and retention in a high-stress quality-care environment.
Integration of education, emotional support, and clinical excellence reinforces the holistic approach. A multipurpose education room, visible upon entry, signals the Center’s commitment to lifelong learning and community connection. The Angel Room offers solace and dignity in moments of loss, underscoring compassionate care at every stage.
By incorporating discovery, wellness, and integration into every detail, the Hendersonville Women’s Center establishes a new benchmark for family-centered childbirth environments that nurture, heal, and inspire while advancing the future of maternal and neonatal care.
Framework for Design Excellence Narrative
**+ CREATING COMFORT USING EVIDENCE-BASED DESIGN**
**Evidence-based Design principles were embraced in an effort to optimize patient outcomes and satisfaction.** This included features to cultivate a sense of comfort and tranquility for mothers in labor through soothing material palettes, natural lighting, and acoustic considerations to reduce noise to promote healing and shape an overall positive childbirth experience. During early conceptual development, it was imperative that we began the project with an open mind by asking fundamental questions, such as:
**_“What are expecting mothers specifically looking for in their care environment, and how can we design a space that meets their needs?”_**
To answer this question comprehensively, the Design Team conducted independent research and analysis that directly informed design decisions.
**Research included a review of scholarly articles and publications related to maternity care, analysis of maternity data, client guidelines, workflow patterns, comparative reviews of similar projects, and current industry trends in maternity design. \n \n One key trend we identified was the growing presence of millennial mothers in the maternity care landscape**. This demographic is known for its strong information-seeking behavior, reliance on technology for decision-making, preference for comfort and flexibility, and heightened focus on mental health and well-being. \n \n Armed with these insights, **our Design Team was able to tailor our approach to meet the evolving needs and expectations of this and future generations** by creating a maternity care environment that is functional and also resonate with the values and preferences of tomorrow’s expectant mothers.
The goals of this two-phase project, located adjacent to an active labor and delivery unit, required a new design aesthetic tailored to a changing audience, while harmonizing with the existing appearance, which was not within the scope for renovation. Photos of the existing 2014 design aesthetic are shown below.
**+ CASE STUDIES AND CLINICAL RESEARCH-GUIDED DESIGN**
The selection of colors within the patient-care environments was deliberate and guided by specific clinical considerations. Our team researched dozens of women’s health spaces. **Four examples to the left identify emerging trends favoring comforting tones and hospitality-inspired material textures. \n ** \n One key factor influencing our choices was the prevalence of newborn jaundice, **a common condition that affects approximately 3 in 5 newborns within the first few days of life. Jaundice results from a buildup of bilirubin in the blood, causing a yellowis**h tint in the baby’s skin and the whites of the eyes. \n \n **Colors such as yellow and red are consciously avoided, as they can create reflections that distort the perceived color of a patient’s skin** - potentially impacting clinical assessments. By eliminating these hues from patient rooms, healthcare providers are better equipped to evaluate the health of newborns without color distortion. Additionally, lighting with a high Color Rendering Index (CRI) is used to help caregivers perceive colors more accurately.
**+ RESEARCH INFORMED DESIGN**
After being separated for several days in the NICU, two premature twins reunited in the most heartwarming way - with a hug. A mother at a Tennessee Children’s Hospital in Knoxville remarked: \n \n **_“You hear about how twins have bonds, but to actually see it in person? It was unreal.”_** \n \n During early design, the unit directors shared that twins often exhibit co-regulatory behaviors - mutual interactions that help them stay calmer, less irritable, and less stressed when together. \n \n **Since 1980, the twin birth rate in North America has risen to 31.2 per 1,000 live births (about 3%), prompting the design team to consider a flexible patient intensive care environment that meet both evolving trends and health regulations.**
\n With the guidance of clinical researchers and the medical staff, we hypothesized_: **Could room sharing could encourage positive, fetal-like interaction - mirroring the natural closeness experienced in the womb?**_
**+ FAMILY-CENTERED DESIGN AT EVERY TURN**
Practitioners naturally want what is best, but navigating parenthood for the first time can feel like learning everything on the job. \n \n Fortunately, decades of research have shown us that family-centered care is a fundamental aspect of Labor, Delivery, and Neonatal Care design. **Family-centered care means that practitioners must have a place to physically meet - beyond the distractions found on the floor.**
\n This means that every aspect of the environment, including meeting spaces, becomes a touchpoint. The art on the walls and the texture of the chair fabric are more than aesthetic choices—they are ways to support a clinical knowledge sharing environment and the emotional well-being of practitioners at every turn.
**+ USING DESIGN TO REDUCE ANXITY AND BRING JOY**
**When patients or visitors arrive in stressful environments, a welcoming, human-centered design can reduce anxiety and help them feel cared for upon arrival. \n ** \n Research in psychology highlights the value of emotional support and well-being. Whether a first-time expectant family arrives for maternal classes after a long day or a mother presents in labor, having a person at the front desk is critical to setting the tone, assisting with wayfinding, offering comfort, and providing information. \n \n The reception desk at the Women’s Center was strategically placed to be easily visible from the building entrance, reinforcing the center’s identity as ‘The Birth Center.’ \n \n Positioned thoughtfully, the desk provides access to an elevator for the labor and delivery floor, connects to the observation area, guides families to the waiting area, screens access to the Neonatal Intensive Care Unit, and welcomes staff from the Clinical Technology and Innovation (CT+I) group.
Photo Captions
2 - Existing Environment Considerations
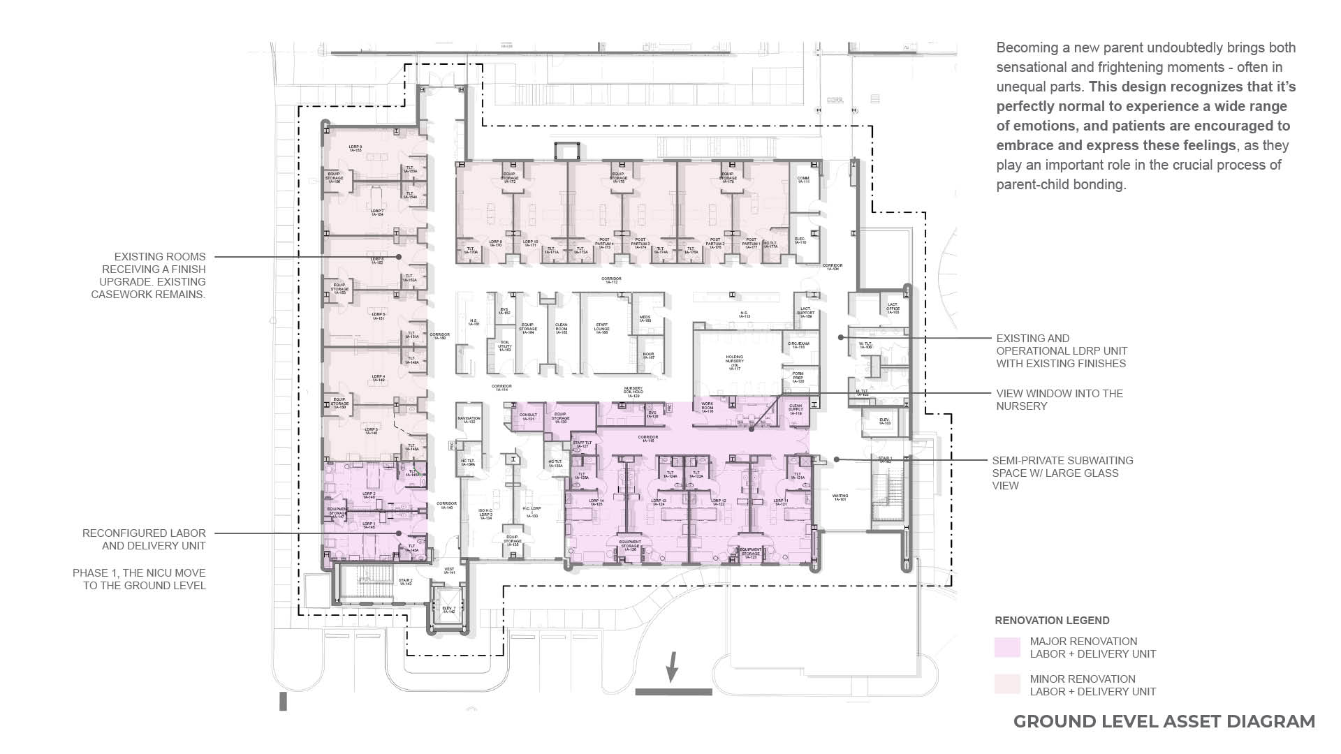
3 - NICU Floor Plan Diagram
4 - LDRP Floor Plan Diagram
5 - Trend Research
6 - Mood Board Research
7 - LDRP Hospitality-like Care
8 - NICU Healing Environment
9 - Research Informed Design
10 - Staff Wellbeing Matters
11 - Attention to Details
12 - Expectant Mother Education
13 - Decision Empowerment Creates Positive Experiences
14 - Support Person Accommodations
15 - Welcoming Entrance to Reduce Stress
General Contractor
Layton Construction
Consultants
I.C. Thomasson, Structural Design Group, M3 Tech Group, Rauland, Skytron, Steris
Photography Credit
Blake Wilson, Barge Design Solutions

