Nashville Register of Deeds
Barge Design Solutions
Returning home adjacent to its original location, the relocation and renovation of the Metro Nashville Register of Deeds exemplifies a thoughtful integration of design, economy, and well-being focused on celebrating our shared history and ensuring that it is not forgotten. Transforming 17,000 square feet of outdated parking garage space into a bright, efficient, and welcoming civic environment, the ultra-fast-tracked project balances historical preservation with modern functionality, proving that civic architecture can be efficient, innovative, and inspiring.
Project Statement
As custodian of all real property records, including deeds, mortgages, and liens, and a part of critical infrastructure, the Metro Nashville Register of Deeds (ROD) is charged with preserving current and historic documents that offer deep insights into Nashville’s past—everything from land to buildings to bills of sale for enslaved individuals. Evolving from handwritten entries to a fully digital system, the office ensures these public records remain accessible in person and online.
25 years ago, ROD moved from the Metropolitan Courthouse to Bridgestone Arena, which has become an increasingly congested area. Relocating back to Deaderick Street beneath an existing 10-story parking garage delivers more efficient vehicular access from I-40, I-65, and I-24, maintains pedestrian access throughout the downtown core, and facilitates intra-governmental collaboration between the State Capitol, Metro Courthouse, and other agencies.
Integrating ROD’s workflow into an existing bank in the downtown core required operations to evolve to meet their vision: Preserving the Past, Empowering the Future--Reimagining what a government office can be. Previously fractured, inefficient, cavernous, and devoid of daylight, the new space had the opportunity to become everything the old space was not. Mapping daylighting opportunities across varying scales of circulation and cross-referencing them with their workflow facilitated this transformation and integrated physical and visual strategies. Promoting accessibility, wellness, and visual connectivity, the layout offers direct visual and physical access for the public, while maximizing natural light and framed views. Transparency becomes the mechanism for enhancing user experience and reinforcing civic trust.
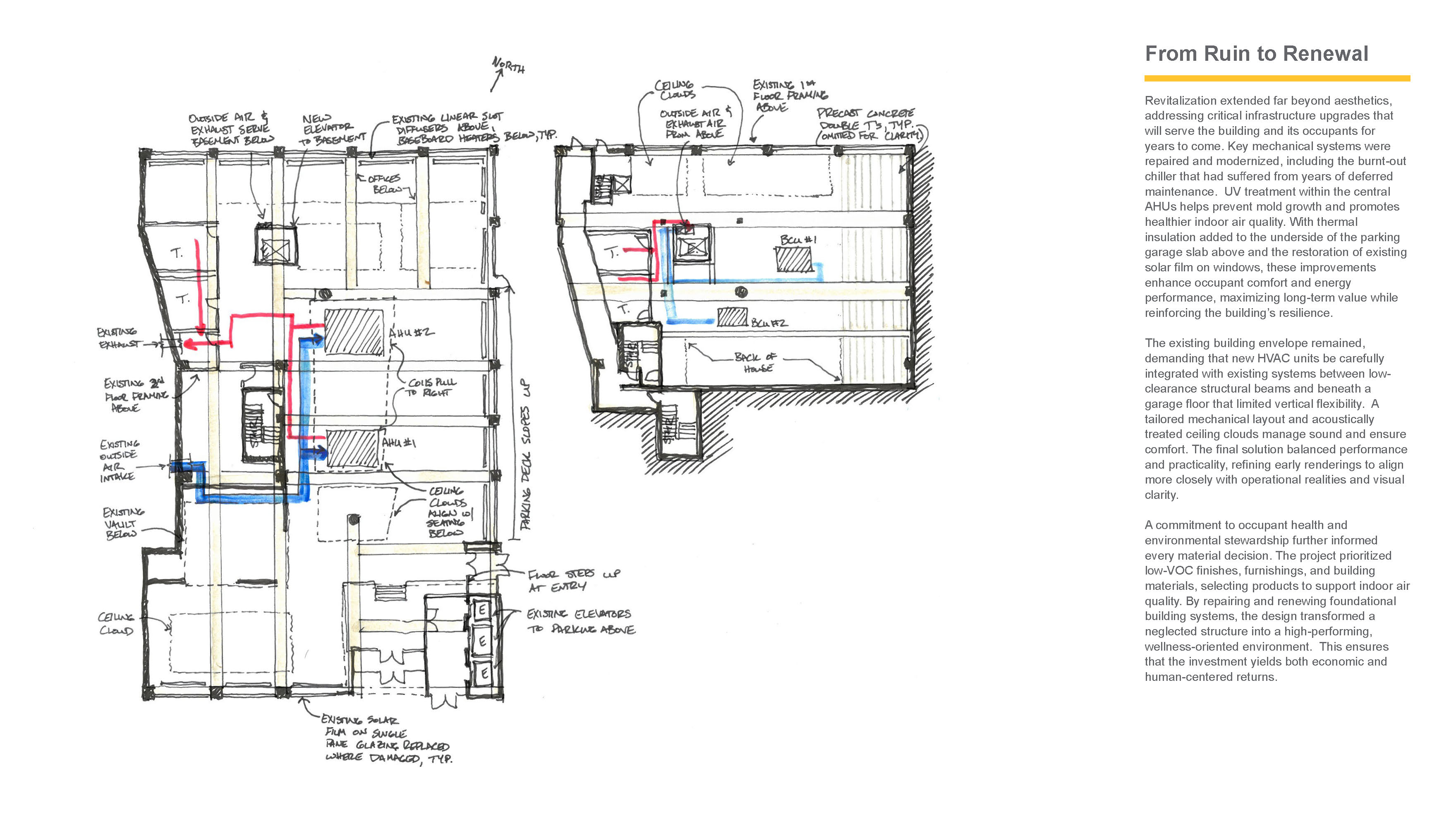
Key building components were repaired and modernized, including replacing a burnt-out chiller, adding UV-treatment to AHUs, spray-foam insulating the underside of the parking deck above, restoring solar film on existing single-pane windows, adding a new ADA ramp, and replacing a spiral staircase with a new elevator. Prioritizing quick-ship, low-VOC finishes, furnishings, and building materials, products were selected to support indoor air quality and maintain an ultra-fast-track schedule. The design transformed a neglected structure into a high-performing, wellness-oriented environment, ensuring that investment yields economic and human-centered returns.
The triple bottom line--the ROD inspires social, economic, and environmental value to its present and future occupants. It demonstrates how workflow-driven design can elevate public experience, creating spaces that not only support high performance but also reflect the values of the community they serve. In redefining the norms of civic architecture, the ROD stands as a model for how thoughtful design can foster trust, accessibility, and well-being.
Framework for Design Excellence Narrative
**DESIGN INTEGRATION** was central to the project, with glass walls, coordinated furniture systems, and intuitive circulation promoting connectivity and transparency. Historic elements, like a repurposed bank vault beneath an existing 1975 parking garage and gallery spaces curated by local artwork and historical photographs, root the project in place and culture, deepening public connection and sensory engagement. \n \n
\n **ECONOMIC EFFICIENCY** was achieved through adaptive reuse of the existing site and building, early-release packages, and sustainable material choices that reduce lifecycle costs and carbon footprint. Strategic use of space and systems support long-term flexibility and maintenance reduction for the current and future tenants. \n \n
**WELL-BEING** guided choices such as daylight access, improved indoor air quality, acoustic comfort, and universal accessibility. Spaces were crafted to encourage movement, social interaction, and mental restoration, fostering an inclusive and health-forward workplace that endeavors to maintain its certification as a great place to work.
Photo Captions
1. Register of Deeds “Director of First Impressions”
2. A Modern Vision for Public Records
3. Accelerating Progress through Partnership—Delivering Results at the Speed of Trust
4. From Challenges to Solutions: Reimagining an Existing Bank Vault
5. From Challenges to Solutions: Reimagining What Government Offices Can Be
6. From Challenges to Solutions: Adaptive Reuse of Existing Building Systems
7. Balancing Quality Design: An Economy of Design, Budget, and Time
8. Transparency by Design
9. Rooted in History, Open to All: A Civic Space for Connection, Culture, and Community
10. Built with Purpose, on Time and on Budget
11. Smart Spending, Lasting Impact—A Civic Investment Worth Preserving
12. From Ruin to Renewal
13. Designed for Work, Centered on Well-Being
14. A New Benchmark
15. Rooted in Place, In Service to the Public
General Contractor
RW Childrey
Consultants
Capital Project Solutions
WIN Engineering
Don Hardin Group
Facility Diagnostics
Allegion
Logan Patri Engineering, Inc.
Photography Credit
Tarrish Potter: Slides 1,4,5,6,7,9,10,11,13,14,15
Blake Wilson: Slides 7,15
Reece Tucker: Slides 4,5,6

