Rutledge Flats
HASTINGS Architecture, LLC
Rutledge Flats employs a micro-unit, congregate housing model to provide Affordable housing to Nashvillians earning 60% of the Area Median Income. The design adapts the typical multi-family housing model to a new way of urban living that is centered around community, walkability, and affordability.
Project Statement
The 2021 Nashville Affordable Housing Taskforce Report projected Nashville to have a 39,058 housing unit deficit by 2030 if production remains at its current rate of 1344 units per year. The 2022 American Community Survey also reported that 52 % of Nashville renters are housing-cost-burdened, spending more than 30% of their income on housing. With over half of Nashvillians struggling to afford housing and the need for a quadrupled production rate to meet future demand, it’s clear that Nashville’s housing crisis is far from slowing down.
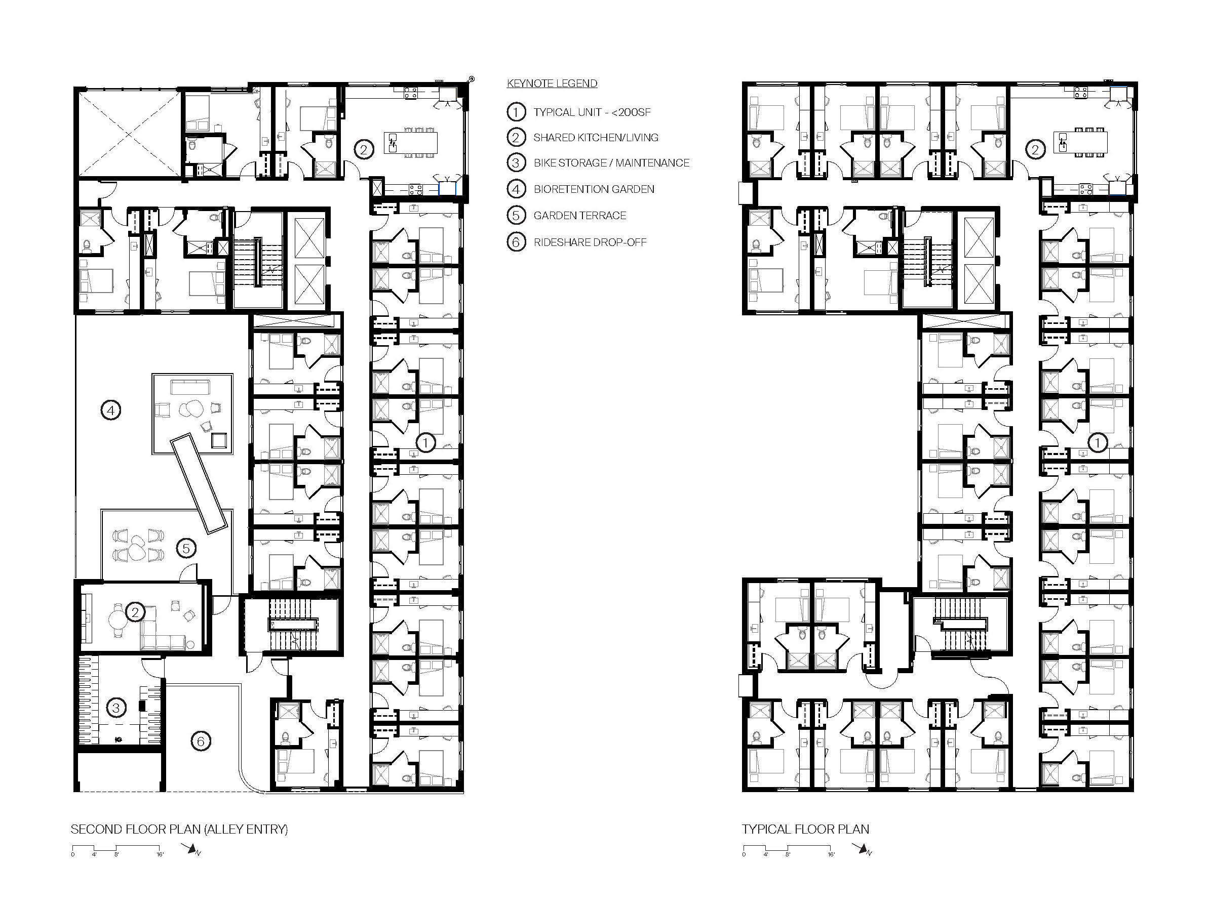
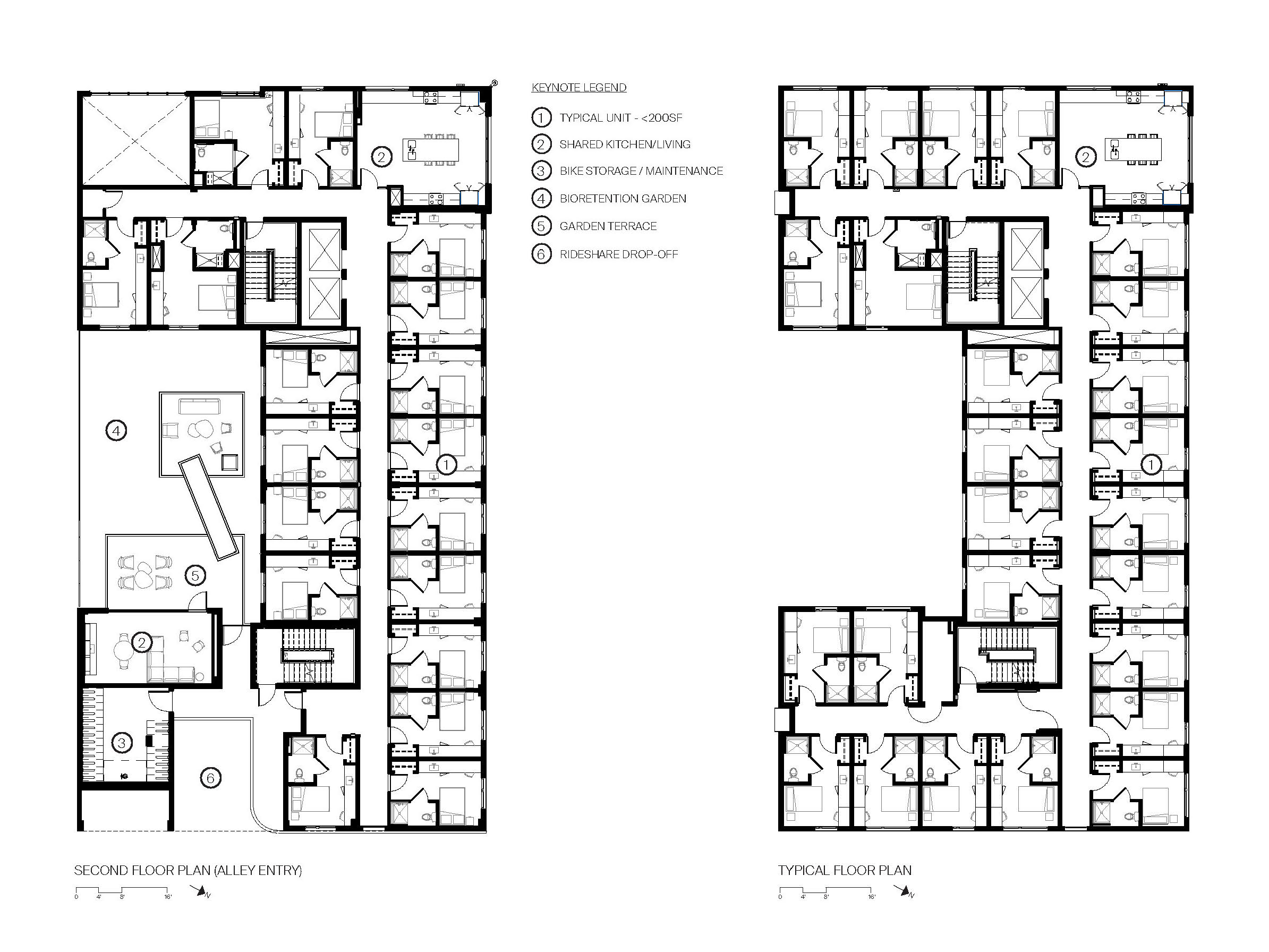
Using a micro congregate housing model, Rutledge Flats brings 100% privately funded, affordable housing to one of Nashville’s oldest downtown neighborhoods and its associated urban job market and public services. The project combines 174 micro-suites (about 200 square feet each) with shared common areas such as kitchens, lounges, and outdoor spaces to create a co-living model centered around community and economy.
The Housing Taskforce also reveals that housing needs fall almost entirely in the 60% and below Area Median Income bracket. Inclusive of utilities, internet, and furnishings, this development provides Nashvillians earning 60% AMI--such as young professionals, artists, musicians, EMT’s, service workers, and teachers--an affordable, modern, and comfortable place to call home.
Pattern as well as the economical tools of color, light and texture reflect the crucial, though often volatile, amalgamation of individuals to create a community. Inspired by the Rutledge Hill street grid, the façade reflects the downtown neighborhood’s evolution— adapting to growth in both deliberate and organic ways, often disruptively. As one of the oldest planned areas in Nashville, Rutledge Hill has responded to community changes through the division, connection, and interruption of major connectors and alleys. The urban fabric’s development mirrors the neighborhood’s interpersonal evolution, and the architecture celebrates both the progress made and obstacles overcome to create a robust, vibrant and diverse community.
Framework for Design Excellence Narrative
1. Design for Economy: The Rutledge Flats congregate living program provides an innovative alternative to the typical affordable housing model. Communal spaces such as cooking, dining and living rooms are consolidated and separated from the private sleeping suites and bathrooms. The consolidation as well as the locally unusual choice to eliminate parking allow for more affordable, livable units on a high value downtown parcel. The density model also enabled the low profit margin project to be 100% privately funded. Rent also includes utilities, internet and furnishings, giving residents a stable and comprehensive monthly housing cost with no surprises.
2. Design for Equitable Communities: Rutledge Flats affordable units bring 60% AMI households closer to downtown jobs and urban services while its congregate living concept encourages residents to foster relationships with neighbors. Communal spaces for living with generous access to light, air and views establish a complete and compact community. Located on a planned major separated bikeway, the project is situated for residents to take advantage of city resources to connect within the immediate neighborhood as well as greater Nashville. To help encourage use of city bikeways, multiple bike storage areas with bike pump and repair stations are provided.
3. Design for Water: In this tightly compact project, the protected courtyard strategically serves the dual purpose of both resident gathering space and stormwater bioretention. As an exterior respite and retreat, it allows residents to have a peaceful area to relax in an otherwise fully urban setting while 100% of building storm drainage discharges into the bio retention area, alleviating stress put on the city storm management system. The development also employs a central hot water system and low flow fixtures to encourage responsible stewardship of this critical resource.
Photo Captions
General Contractor
R.C. Mathews Contractor Mark Jarrell 615.225.7561 mjarrell@rcmathews.com 615 3rd Avenue S Nashville, TN 37210
Consultants
Civil Engineer
Michael Dewey Engineering
Michael Dewey
615.401.9956
mdewey@dewey-engineering.com
2925 Berry Hill Drive
Nashville, TN 37204
Landscape Architect
HDLA
Richie Jones
615.327.4447
rjones@hodgsondouglas.com
507 Main Street
Nashville, TN 37206
Structural Engineer
AG&E (formerly Balata Structural Engineering)
Warren Goodrich
615.369.0200
wgoodrich@strdetail.com
229 Ward Circle, Suite C12
Brentwood, TN 37027
MEP Engineer
Power Management Corporation
Jeff Pinkston (Mechanical, Plumbing)
jpinkston@powermgmt.com
Jonathan Lund (Electrical)
jlund@powermgmt.com
615.383.6949
60 Music Square E, Suite 300
Nashville, TN 37203
Photography Credit
© McGinn Photography

