Turkey Ridge Residence
Carlton Edwards Architecture + Interiors
Set on rolling land in western North Carolina, this residence reinterprets the traditional gabled form with modern clarity. Brick, wood, and finely detailed glass come together to create a home that is both crafted and contemporary, grounding family life in a place of comfort and beauty. By weaving architecture with its landscape, the design delivers a lasting connection to nature and to home.
Project Statement
This home sits on a rolling site in Fletcher, North Carolina, surrounded by long views of mountains and fields. From the beginning, the design goal was to make the house feel like it belongs to the land rather than being placed on top of it. The main volumes follow simple gabled forms, a nod to the traditional rural buildings of the region, but they’re reinterpreted in a modern way with clean detailing, warm natural materials, and walls of glass that connect inside life with the surrounding landscape.
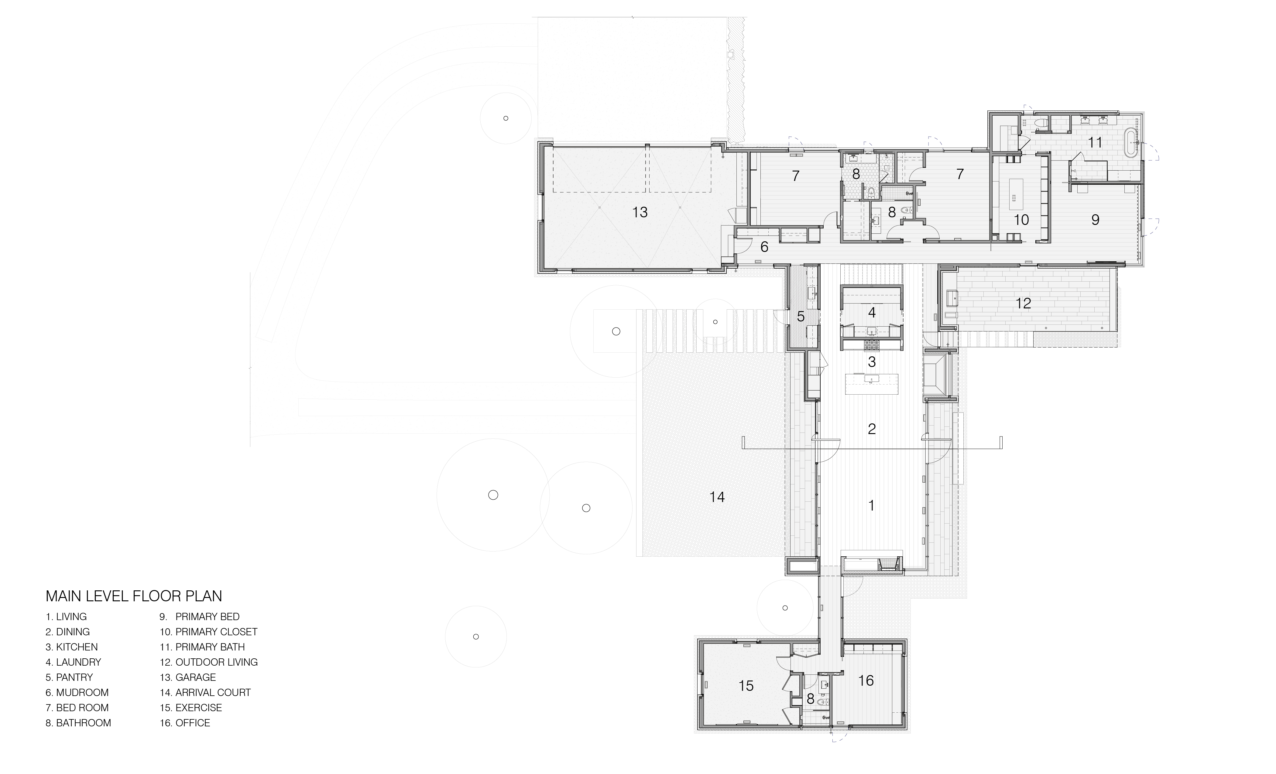
The site itself was both an opportunity and a challenge. Its slope and wide-open exposure meant we needed to balance privacy and openness. The plan organizes the house into wings — gathering spaces at the center, more private bedrooms at the edges, and a separate office pavilion. This allows each room to capture its own view while keeping the overall scale comfortable.
The detailing is deliberately simple but refined. Brick and wood siding anchor the home with a timeless, tactile quality. Glass corners and long rooflines highlight craftsmanship while bringing daylight deep inside. The interiors extend outward through large sliding doors that open to patios and porches, creating a seamless flow between indoors and outdoors.
Environmental considerations shaped many choices. The house integrates geothermal heating and cooling loops beneath the landscape, making use of steady underground temperatures for energy efficiency. Large roof overhangs reduce solar gain in summer while allowing winter light to warm the interiors. Materials were chosen for durability and low maintenance, ensuring the home will age gracefully with little impact on the environment.
The story of this project is ultimately about context and restraint. It’s a modern house that does not compete with its surroundings but instead frames them: the distant mountains, the changing skies, the field grasses that come right up to the walls. It’s a home that gives its owners comfort and connection while quietly respecting the beauty of the land around it.
Framework for Design Excellence Narrative
## **Design for Integration**
The house is conceived as a whole, with architecture, landscape, and interior all working together. Its gabled forms recall rural precedents, but the detailing is precise and modern. Each decision, from siting to materials to building systems, supports the broader goal of creating a home that feels both timeless and deeply of its place.
## **Design for Energy**
The home achieves a HERS rating of 25 through a layered approach: geothermal heating and cooling, a highly insulated envelope with an air change rate of just 1.7 ACH, and a 25-panel 9kW solar array paired with Tesla Powerwalls for storage. This combination reduces operational energy dramatically, ensuring resiliency and long-term sustainability.
## **Design for Ecosystems**
The siting minimizes disturbance, preserving existing trees and natural drainage patterns. Native meadow grasses reduce water use and help stitch the home back into its landscape. Outdoor rooms and terraces extend daily life into the environment without heavy-handed intervention.
## **Design for Well-Being**
Natural light, fresh air, and framed views are central to the experience of the home. Large expanses of glass connect living spaces to changing skies and seasons, while quiet, restorative bedrooms offer privacy. An office pavilion provides a dedicated place for creative work at home. The proximity to their son’s school and the home’s functional, family-oriented layout further reinforce well-being by simplifying daily life.
Photo Captions
2- Site and Landscape Plan
3- Floor Plan
4- Building Cross Section
5- Tonal material palette blends in with the natural context and texture.
6- The entry sequence and material palette seeks to establish a calm and deliberate arrival.
7- Circulation is treated as an experience, animated by shifting light and curated art.
8- Hallway vignette terminating into a view of the mountains beyond.
9- Minimalist geometry is balanced with art, creating a hallway both serene and personal.
10- Curated moments along circulation corridors allow for constant yet varied connection to the outdoors.
11- A precisely framed kitchen window transforms routine into a moment of reflection.
12- Entry composition of brick, wood, and glass establishes a timeless modern identity.
13- A gabled ceiling defines the kitchen, uniting proportion, order, and warmth.
14- At dusk, the home glows like a lantern, revealing continuity between interior and landscape.
\n
General Contractor
Carlton Edwards Construction
Consultants
Landscape Architect: Drake Fowler
Structural: Kaydos Daniels Engineering, PLLC
Photography Credit
Ryan Theede

