Metro Nashville Public Library - Donelson Branch
Large Project (over 25,000 sf)
Inspired by the character of the surrounding neighborhood, the new Donelson Library celebrates the community’s past and future through sustainable design, public art, and vibrant gathering spaces.
Awards Year | 2025
Project Statement
The Donelson Branch of the Metro Nashville Public Library system serves as the community centerpiece for this Nashville neighborhood. Positioned within Donelson Plaza – a 1960s-era shopping center and longtime local landmark that is being transformed into a modern, transit oriented urban town center – the library and its community lawn are key to larger efforts to revitalize this unique part of the city.
Inspired by the mid-century character of the surrounding area, the architecture draws from "atomic age" motifs and graphic design to define simple yet playful geometries. The restrained material palette of brick, glass, and breezeblock tell a story of composition and collage. Panels of white brick emulate argyle patterning commonly used in graphic design of the era while breezeblock, a midcentury staple, acts as passive shading for the exposed southern facade.
Having achieved LEED Gold Certification, Donelson Library’s commitment to its context and sustainable strategies strongly informed the architecture. Responding to the axial connection to Lebanon Pike and the site's solar conditions, the southern (front) facade “breaks” to create a protected entry beneath the flying roofline above. This new front porch celebrates the traditions of southern oral storytelling as a place for people to gather beneath a “haint blue” soffit – a trademark of porch ceilings throughout the southeast. Working towards the building’s aggressive site Energy Use Intensity (EUI) target, a 33.3 kW rooftop photovoltaic array provides passive power through a grid-optimized strategy suited to Nashville’s climate.
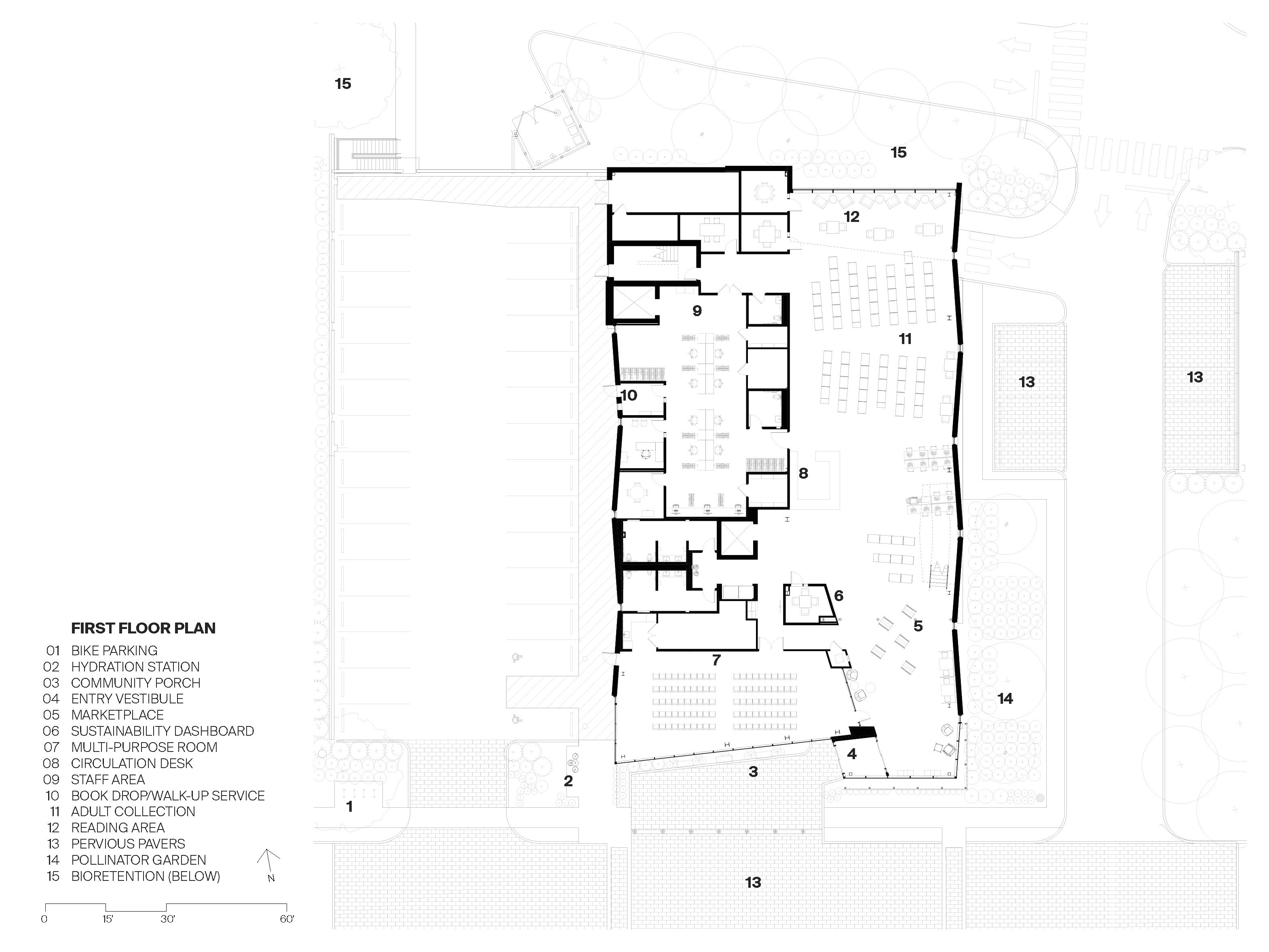
The interior floor plan follows the established axis, with service and staff areas to the west and open library space to the east. While the long east and west facades employ strategic window placement for daylighting and views, the northern face takes advantage of naturally diffused sunlight with a fully glazed double-height reading space.
Utilizing a change in grade across the long dimension of the site, primary parking is accommodated below the building, allowing for a front lawn featuring reading areas, space for library programming, and artwork commissioned in collaboration with Metro Arts Nashville. Beneath the surface, the lawn boasts thirty geothermal wells plunging 500 feet deep, using the temperature of the earth to naturally heat and cool the building year-round.
A testament to the community’s past and future, the Donelson Library tells a story of innovation and heritage. This critical piece of civic infrastructure is poised to be a vibrant hub for learning, gathering, and storytelling.
Framework for Design Excellence Narrative
1. Design for Integration
The Donelson Public Library sets a new standard for integrated design in civic buildings for the city of Nashville. The design process included close collaboration with the community, city officials, and the library to create a community centerpiece that spoke to the historic character of the neighborhood while committing to a more sustainable future.
The southern facade “breaks” to create a protected entry beneath the flying roofline above while addressing solar conditions and the strong, axial connection to Lebanon Pike. This overhang is punctuated by an iconic breezeblock wall, a trademark feature of midcentury design, that acts as both entry signifier and shade screen.
The floor plan prioritizes user experience, accommodating diverse community needs with spaces tailored for children, young adults, and the general public. The elevated reading area for children overlooks a bioretention area, utilizing the natural grade change to manage the site’s stormwater while offering a treehouse like experience for young visitors.
Primary parking is accommodated below the first floor, allowing for a front lawn featuring reading areas, space for library programming, and public art. A curbless drive of pervious pavers connects the building to the lawn and the adjacent properties while mitigating stormwater runoff. The lawn also hosts thirty geothermal wells to naturally heat and cool the building year-round.
By bringing together contextual, functional, environmental, and community considerations, the Donelson branch library is a testament to thoughtful and integrated community design.
1. Design for Energy
The library not only serves its community but also exemplifies a commitment to energy efficiency and environmental stewardship.
• The design team iteratively energy modeled throughout the full design process • The building has a projected EUI of 35, which is the highest performing Department of General Services building to date and lands far below the US library median EUI of 71.6; • Includes a 33.3 kW rooftop photovoltaic array and accommodates future 100 kW system expansion by sizing electrical equipment for future capacity and has allocated space and connection points for added panels;• Has thirty, 500ft deep geothermal wells beneath the Community Lawn, using the temperature of the earth to naturally heat and cool the building year-round; • Encourages visitor’s energy-awareness by providing electric vehicle charging stations as well as an interactive sustainability dashboard (“Socket”) which allows users to understand and track the building’s energy usage. • The Building Automation System (BAS) controls and monitors all HVAC equipment as well as the Energy Management System and is configured to manage occupied, unoccupied, optimal start, and optimal stop schedules, optimizing energy conservation. • Enhanced commissioning for MEP and envelope: design review, submittal review, OM Documentation & training, ongoing commissioning plan • Enhanced energy metering using eGuage system • Daylight and occupancy sensors throughout • Incorporates passive design strategies such as o Less than 30% total building glazing with strategic east and west slot window placement to reduce glare while maintaining views and daylighting, o High-performance glazing and an iconic breezeblock screen at the front southern façade o An expansive two-story curtainwall at the northern façade o A continuous second floor clerestory window with roof overhang to bring in natural light while limiting solar heat gain. o Light color roof and traffic coating
1. Design for Equitable Communities
The design for the library creates a welcoming, accessible, and inclusive space that serves as a vital community hub, fostering engagement and equal access to resources for all residents.
• Reduces transportation barriers with proximity to Nashville’s only commuter train, accessible walking paths, bike racks at multiple levels, publicly accessible water fountain • Community members were involved throughout the design and construction process • The first floor design allows for the library to close while the community room remains open for special events/community programming. • The second floor includes an adult changing room and computer carrels designed for patrons with children. • The roof overhang creates protected areas for patrons to wait for transport, a solar bench allows for phone charging without entering the building. • Educational signage communicating building systems and sustainability throughout with real life updates through the Library’s Socket monitoring program. • Expanded public wifi throughout the site for access to internet at all hours. • Multilingual signage in English, Spanish, Arabic addresses the diverse population of the neighborhood. • Public artwork by a local artist reflects the community's character and ecosystem • The new facility increased the capacity to nearly 30,000 books and materials, providing more resources to the community. • Integrated features like the Vehicle Registration Renewal Kiosk make essential services more accessible across Davidson County. • The pursuance of LEED Gold promotes a healthier environment for all community members. • The Metro Arts Lending Library collection allows patrons to check out artwork, democratizing access to art.
LEED/Green Certifications
LEED Gold Certification
Price/sq. ft. if provided
Withheld

