1111 Church Street
ESa
1111 Church Street features a striking modernist design with exposed concrete columns and the largest amenity deck in Nashville, offering 380 apartments and over 52,000 square feet of exclusive amenities. A monumental stair and upgraded alley enhance pedestrian connectivity and retail engagement, while the building’s verticality and minimal palette integrate seamlessly with its urban environment and landscaped green spaces.
Awards Year 2024 |
Project Statement
Simple gestures inform the design features, including exposed columns and the largest amenity deck in Nashville. Executing an organic and human-nature conceptual design for the amenity deck informed how the project approached its programmatic needs. With 380 one and two-bedroom apartment units, there are over 52,000 square feet of interior and exterior amenities for the exclusive use of residents. The tower’s positioning takes advantage of its site, in response to the project’s central design challenge. The street frontage along the Church Street viaduct is elevated over 30 feet from the rest of the property.
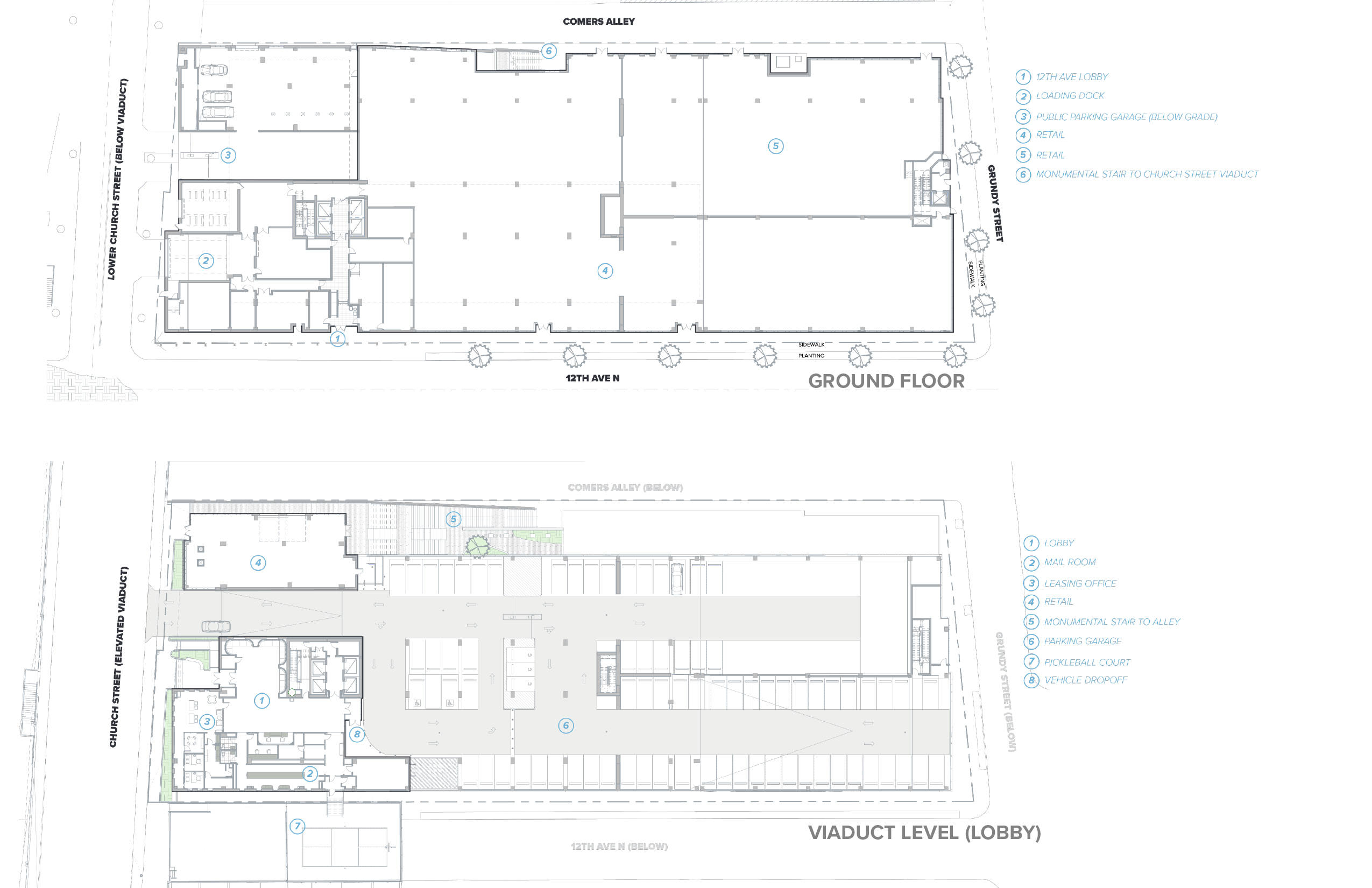
Connectivity was achieved by creating a monumental stair leading pedestrian from Church Street down to the upgraded alley lined with retail storefronts.
The integration of the alley creates pedestrian engagement and establishes a uniform context between the street front and the base of the tower. Emerging out of the base with strong verticality, the tower’s modernist design gives hierarchy to the exposed structural concrete columns that extend beyond the roofline. A minimal palette allows the domination of glass, accented with metal and exposed concrete, to reflect the building’s surroundings. Twenty-one stories rise above Church Street, and the remaining four stories are “subgrade” beneath the elevated viaduct. Approximately 150 public parking spaces serve retail patrons and the surrounding community. From its prime location, residents can easily access the vibrant city and its myriads of attractions. The project boasts meticulously landscaped green spaces that serve as a peaceful urban oasis for its residents.
Framework for Design Excellence Narrative
Integration: A major component of what this project seeks to achieve is a connection from the elevated viaduct down to grade while activating as many fronts as possible. A monumental stair is meant as the integration between retail uses that engages the pedestrian along the predominantly glass storefronts. The scale and massing of the parking structure is placed at the viaduct level extending down to grade as to allow for a human-scale and active Church Street frontage. The amenity level concept explored through the desired lines of the floor plan was implemented both inside and out for the resident’s use to more cohesively integrate the interior and exterior moments of respite and gathering.
Well Being: The project prioritizes occupant health and wellness through a comprehensive suite of amenities that support physical, mental, and social well-being. Residents benefit from a fitness center with studios, steam and sauna rooms, a rooftop pool deck, outdoor fitness areas, and spaces for recreation such as a music room, sports simulator, and pickleball court. The inclusion of landscaped green spaces and rooftop terraces provides restorative environments and visual connections to the city skyline. These features, combined with concierge services and communal lounges, foster a sense of belonging and holistic wellness.
Discovery: The design process for 1111 Church Street was marked by a series of technical and conceptual discoveries that enriched the final outcome. Through rigorous WUFI (hygrothermal) analysis, the team achieved a rare balance, exposing structural concrete for aesthetic and expressive purposes while maintaining high standards of energy performance and thermal comfort. This exposed concrete not only serves a functional role but also celebrates the craftsmanship and labor embedded in the building’s framework, contrasting with the sleek glass envelope. Conceptual exploration further led to innovative programming on the second-floor amenity deck, where spatial relationships and user experience were reimagined to enhance community interaction and wellness. These discoveries reflect a commitment to continuous learning and refinement throughout the design journey.
Photo Captions
2 - View from Church Street Viaduct looking at entry.
3 - 1111 Church Street integrates seamlessly with the Church Street viaduct, featuring a monumental stair that connects the elevated viaduct to the vibrant ground-floor retail and activated alley.
4 - Section through the tower reveals its relationship to the viaduct, with the top left showing the stair connecting Church Street Retail to Alley Retail and the bottom left depicting the grade difference from an aerial view.
5 - Before/After of the site conditions
6 - The layout highlights the seamless connection between elevated retail and vibrant street-level spaces, enhancing pedestrian flow and urban engagement. 7 - The amenity level showcases expansive, resident-focused spaces, while the typical floor plans emphasize efficient and modern living environments.
8 - Largest amenity deck in Nashville, over 52,000 square feet of exclusive amenities
9 - Exterior amenities include a pool deck with outdoor bar and outdoor grills, dog run, pickle ball court, and an outdoor fitness area.
10 - Thoughtfully crafted spaces and amenities that prioritize comfort, functionality, and a seamless connection to the vibrant urban environment.
11 - The amenity floor’s figural design exemplifies Design Integration by serving its occupants while embodying the overarching design concept.
12 - Indoor amenities include a chef’s kitchen, sport simulator, library and wellness spa, designed for comfort, connection and retreat.
13 - Exterior detailing, where exposed concrete structure meets glass curtain wall, revealing the building’s tectonic clarity and urban sophistication.
14 - A detailed look at the building’s exposed concrete strategy and dew point analysis, demonstrating how design decisions balanced aesthetics, energy performance and moisture control.
15 - 1111 Church Street anchors the Nashville skyline with its reflective glass façade and dynamic street-level energy, marking a new chapter in downtown living
General Contractor
Yates Construction
Consultants
Structural Design Group – Structural Engineering
Regan-Smith Associates – Civil Engineering
Phoenix Design Group – MEP Engineering
Hawkins Partners – Landscape Architecture
SSR –Commissioning
Photography Credit
Chad Mellon

