12 South Collection Shell and Core
MZA Architecture + Interiors
This mixed-use development anchors the vibrant 12 South neighborhood with a curated collection of ground-floor retail and soft goods brands, topped by two chef-driven restaurants overlooking the district. The project transforms an underutilized block into a walkable destination, blending hospitality, retail, and community gathering in a cohesive urban setting. Its design celebrates the neighborhood’s character while elevating the experience of place through thoughtful use of material, texture, and scale.
Awards Year 2024 |
Project Statement
The 12 South Collection is situated at a prominent block in one of Nashville’s most walkable neighborhoods, where the design challenge was to create a development that both reflects the energy of 12 South and provides a curated destination for locals and visitors. The project is conceived as a fusion of contrasting elements - dark and light brick, expressive coursing, and a dynamic interplay of metal paneling - balanced by the warmth of wood soffits in key moments. Together, these materials provide texture, depth, and a tactile quality that grounds the project in its context while elevating the retail and dining experience.
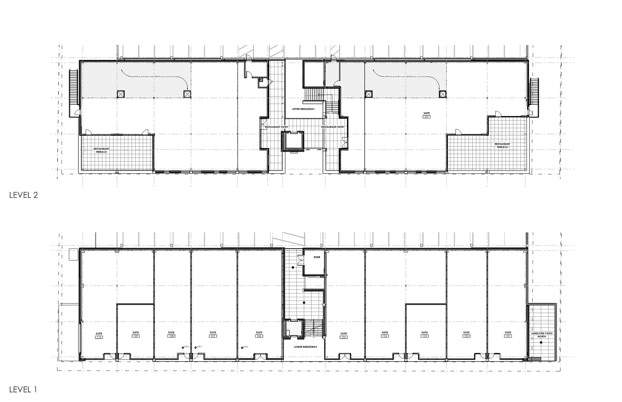
Organizationally, the site is divided into quadrants and oriented around a central breezeway that establishes a clear and rational parti. This breezeway provides both an intuitive pedestrian entry sequence and a moment of pause, framing the transition between ground-floor retail and the second-floor restaurants. Street-level shops engage directly with the sidewalk, reinforcing the neighborhood’s pedestrian culture, while the elevated dining spaces take advantage of views over the district. Visitors arriving by car are guided through structured parking at the rear and naturally reoriented through the breezeway, ensuring a cohesive experience from all points of arrival.
The project’s design innovations lie in its restraint and precision: the careful proportioning of brick coursing to catch changing light, the modulation of metal panels to accentuate contrast, and the integration of natural materials to soften the composition. These decisions create a layered visual identity that shifts from day to night, formal to casual, and urban to intimate.
In response to the site and context, the 12 South Collection stitches together the rhythm of the neighborhood while offering a curated balance of retail, hospitality, and gathering. The result is a contemporary destination that enhances the walkable fabric of 12 South, enriches its streetscape, and contributes to the district’s ongoing vitality as one of Nashville’s most distinctive cultural corridors.
Framework for Design Excellence Narrative
**Design for Well-being**
The design of the 12 South Collection encourages a healthy lifestyle by prioritizing a walkable, pedestrian-focused experience. The site’s central breezeway and street-level retail are designed to integrate seamlessly with the existing neighborhood fabric, promoting outdoor activity and local interaction. The project provides greater occupant comfort through its thoughtful organization, which creates intuitive and easily navigable spaces. By connecting people with the surrounding vibrant district, it fosters a sense of place and belonging. The selection of materials, such as wood, is intended to provide a tactile and grounding quality that contributes to a welcoming and inclusive environment for all visitors and residents.
**Design for Economy**
The design provides long-term value by balancing initial cost with durability and commercial viability. The robust, high-quality materials, including brick and metal paneling, ensure the project's longevity and reduce future maintenance costs. This thoughtful material selection and durable construction contribute to the project’s economic sustainability. The design is a strategic investment in the neighborhood’s future, creating a destination that draws visitors and supports the local business ecosystem, thereby enhancing the economic resources of the community. Its adaptability and layered design ensure that it remains a vibrant and relevant asset for years to come.
**Design for Integration**
The core concept of the 12 South Collection is to create a dynamic destination that is both a part of the existing neighborhood and a curated experience in its own right. The design achieves this by engaging the senses through a rich interplay of contrasting textures and the modulation of light on different surfaces, which shifts throughout the day. This creates a place with a distinct identity that people would be motivated to preserve. The project provides multiple benefits by enhancing the social fabric through its public spaces and walkability, supporting the local economy by attracting commerce, and demonstrating environmental value through durable, thoughtful construction that is designed to last.
**Design for Resources**
Material selection decisions for this project are guided by their aesthetic, performance, and durability. The design employs a focused palette of natural materials, including regionally sourced brick and wood, which are chosen to withstand the elements and provide a lasting, high-quality finish. The project celebrates local materials and craft by incorporating tile accents designed by Haustile, a 100% woman-owned company based in Nashville. The emphasis on durable construction and timeless design means the building is intended to last for decades, reducing the environmental impact associated with frequent renovations or replacement.
**Design for Discovery**
The project’s layered visual identity, which shifts from day to night and formal to casual, provides a sense of discovery and delight for visitors and occupants. This dynamic experience is rooted in the careful modulation of materials and the precise proportioning of architectural elements.
Photo Captions
02\_12 South – Street view of soft-lit storefronts at dusk.
03\_12South – Open breezeway with contrasting dark and light elements.
04\_12 South – Upward angular shot of Black Locust wood ceiling supported by Taylor Clay Brick column with a unique, slim steel handrail in the bottom right corner.
05\_12 South – Upwards shot of Black Locust wood ceiling against a slightly cloudy sky.
06\_12 South – Close-up of a shadowed stairwell with local Nashville-made porcelain tile.
07\_12 South – Staircase against a black wall with patterned shadow, contrasting against bright green grass.
08\_12 South – Site Plan
09\_12 South – Floor Plans
10\_12 South – Elevations
11\_12 South – Elevations (2)
12\_12 South – Details
13\_12 South – Details (2)
General Contractor
City Construction
Consultants
Nick Perry – Quest Design Group (MEP Engineer)
Client’s Consultants:
Jay Fulmer – Fulmer Lucas (Civil)
Austen Berry – HDLA (Landscape Architect)
Lightswitch (Lighting Design)
Photography Credit
Andrew Keithly

