Caney Fork Cabin
HASTINGS Architecture
Fed by the deep, cold waters from Center Hill dam upstream from this house, the Caney Fork River winds its way along the western base of the Cumberland Plateau creating a unique habitat for striped bass. This cabin is ideally situated for an avid fly-fisher and environmentalist and is perched at the edge of the Caney’s banks, merging with the tree canopy above. Fly fishing is imprinted in this modern project, influencing all decisions, and shaping an experience as relaxed and restorative as the sport. The exterior integrates seamlessly into the landscape through the use of complimentary materials, textures, and forms. Concrete, metal, and wood come together to create an undemanding, durable, and timeless material palette. Blackened exterior siding interprets the striped bass markings with its vertical patterning
Awards Year 2024 |
Project Statement
Nestled within the tree canopy of the Caney Fork River, the Caney Fork Cabin offers a tranquil weekend escape from the hustle and bustle of city life for a nature-loving couple. Its spacious yet intimate setting provides the perfect gathering place for family and friends. Strategically positioned on an elevated riverbank, the cabin seamlessly integrates into its surroundings, creating a sense of timelessness as if it has always been a part of the landscape.
As you approach the site, the north façade emerges, carefully woven into the forest understory with its dark vertical Accoya siding and shaded by the roof canopy above. The cabin’s thoughtful placement balances minimizing site disturbance with maximizing views of the river and the bluff beyond. A restrained material palette of wood, concrete, and metal reflects the native environment throughout the cabin. To minimize its environmental impact and ensure self-sufficiency, the cabin employs a variety of off-grid strategies: solar roof arrays with full battery backup provide renewable energy, rainwater harvesting supplies potable water, and a geothermal HVAC system facilitates heat exchange. Located within a floodplain, the house is raised three feet above grade and is designed to be resilient in the event of a flood.
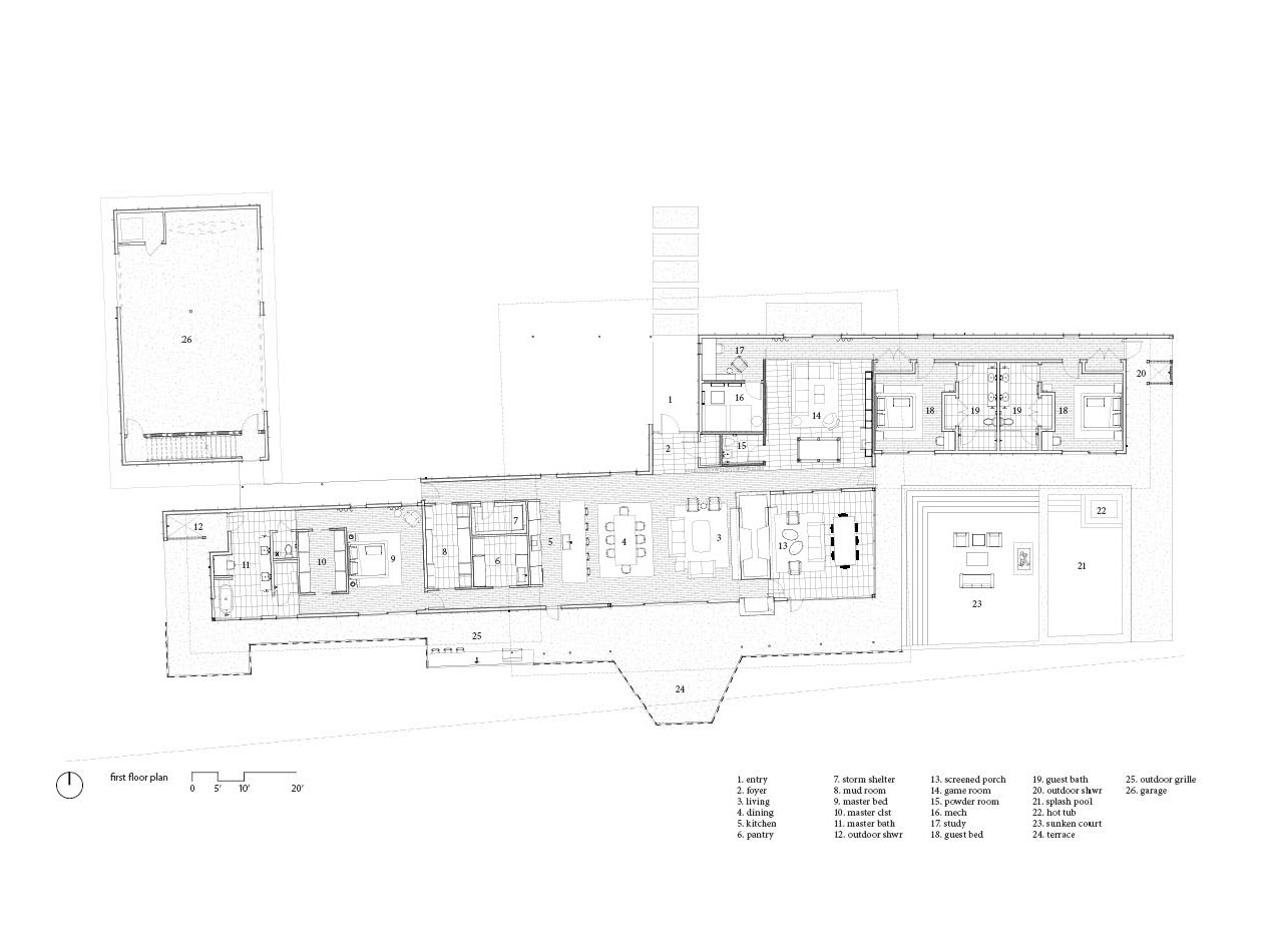
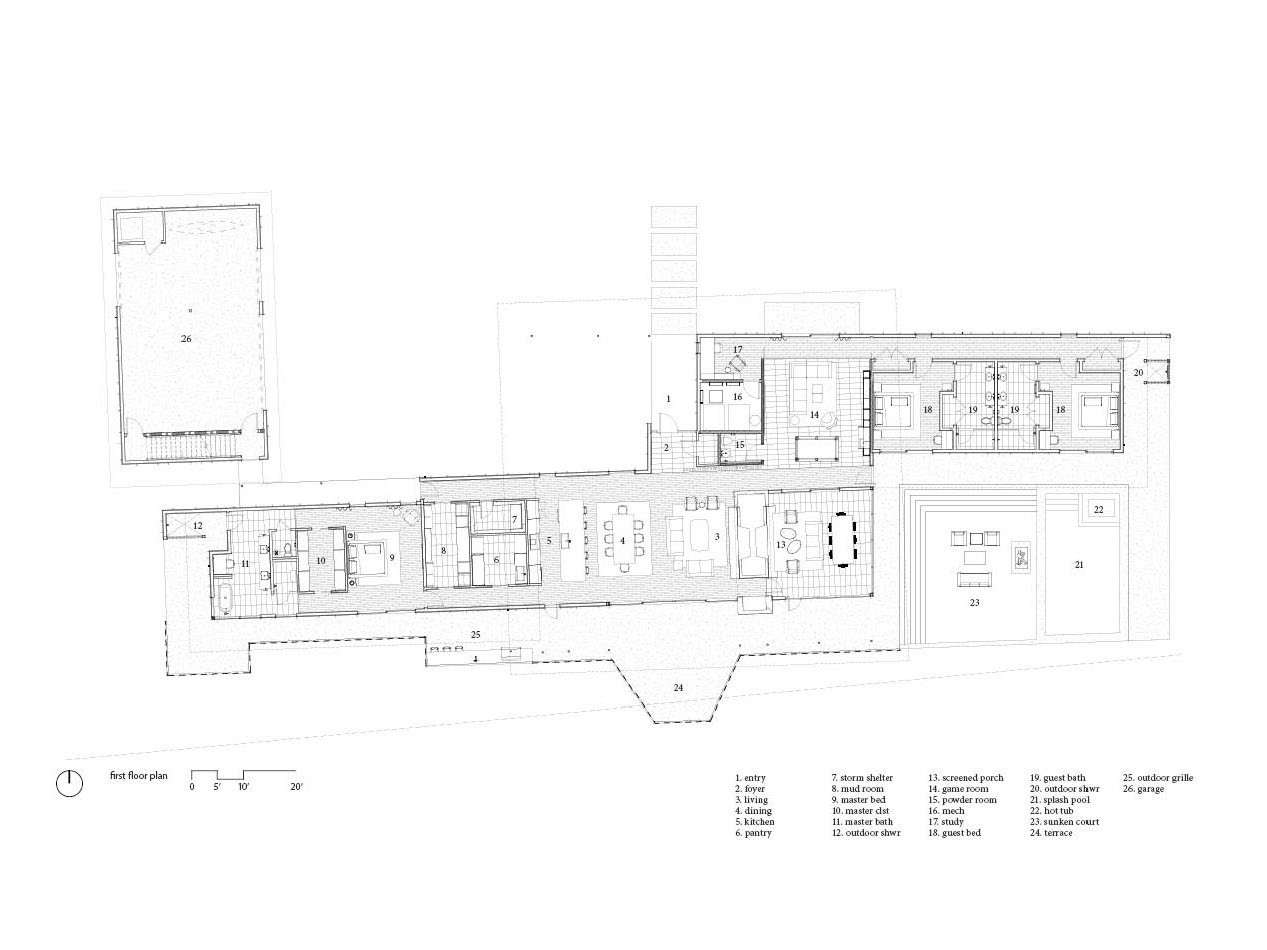
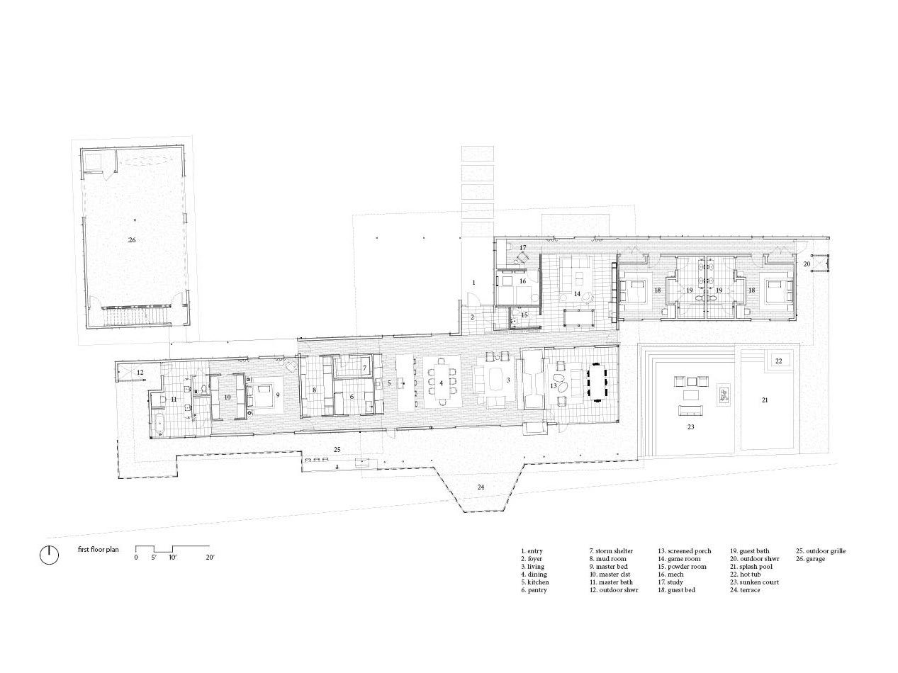
Echoing the ebb and flow of the river, a series of expanding and contracting horizontal volumes define the space, while an east-to-west axis organizes the transition between public and private areas. The main entrance on the north side leads through the kitchen and dining areas to the southern outdoor living spaces. Sweeping views and a seamless connection between indoors and outdoors are achieved with floor-to-ceiling windows and large sliding glass doors that fully open to the terrace and surrounding landscape.
The east wing houses a game room, office, and two guest rooms, each with an en suite bath and access to an outdoor shower. The west wing offers privacy for the primary bedroom, bathroom, and an adjoining outdoor shower, along with convenient access to the boat ramp. The entire length of the southern façade features a canopied terrace that hovers above ground level, serving as a key gathering space complete with an outdoor grill, firepit, splash pool, hot tub, and a sunken living room court.
Framework for Design Excellence Narrative
1. Design for Integration: Seeking not only design excellence, but also to embody advanced sustainable thinking, the home addresses many aspects and works to minimize overall lifecycle costs. Features such as 100% roof area rainwater harvesting for potable water usage, a 15.19 kW roof-mounted PV array, whole-home battery storage, geo-thermal HVAC, 100% LED lighting, standing seam metal roof, foam insulation, local and regional materials, construction waste recycling and passive design combine to elevate the project and minimize its environmental impact.
2. Design for Water: The project maximizes rainwater harvesting, utilizing 100% of the roof area to capture water in a 4,100-gallon underground poly tank for potable use. The civil and landscape design, guided by the architect, ensures natural stormwater management throughout the site. The cabin is designed to mitigate flood risks while its sitting in the flood plain through the use of crawl space flood vents and by elevating the first floor above the floor plain.
3. Design for Energy: The home seeks to be Net Zero through a wholistic approach to energy efficiency, high performance building envelope, and roof areas designed for solar photovoltaic arrays. The site was carefully studied to determine the building orientation while enhancing the design moves and sustainability goals. The high-efficiency geothermal home, LED lighting and energy star appliances minimize electrical consumption so the cabin can run off-grid on solar and battery storage.
Photo Captions
2- The Caney Fork River diagrams and inspiration.
3- An overhead view of the residences’ placement within the hillside and its relationship to the river.
4- The side door entrance to the home.
5- The exterior and interior details of the front and back porches as well as the living room seating area next to a custom fireplace.
6- The open concept living, dining, and kitchen area seamlessly flows outward onto the cantilevered terrace, offering breathtaking views of the river and landscape beyond
7- The open and airy bedroom and bathroom areas within the home.
8- The entry facade carefully slipped into the tree canopy at the river’s edge.
9- The interior study, lounge and game area that connects to the guest wing on plan west.
10- The rear exterior façade built into the hillside looking down onto the water.
11- The rear exterior façade features the guest wing and screened porch with a sunken lounge and game area, complete with a splash pool.
12- Site Plan
13- First Floor Plan
14- Second Floor Plan
General Contractor
Cliff Carey General Contractors, Inc.
Consultants
Civil Engineering: CSDG
Structural Engineering: EMC
MEP Engineering: PMC
Photography Credit
© HASTINGS Architecture

