Element Eatery
Gresham Smith
The Element Eatery Food Hall, located approximately 7 miles northeast of downtown Cincinnati, serves as the social heart of a development that is in the process of transitioning from a suburban office campus into an active mixed-use development. The benefit of this food-centered project extends beyond the Medpace employees to the community of Madisonville. At its core, Element Eatery is all about people. The project is intended to be a fun and approachable place that connects colleagues and members of the community across all ages around local food and beverages.
Awards Year 2024 |
Project Statement
Attracting, developing, retaining, and advancing talent is a key tenet for Medpace, a scientifically driven clinical research organization (CRO). The Element Eatery Food Hall serves as the social heart of a development that is in the process of transitioning from a suburban office campus into an active mixed-use development. The benefit of this food-centered project extends beyond the Medpace employees to the community of Madisonville. Local Chefs and Brewmasters that call Element Eatery home are artisans at the center of connecting people within healthy communities.
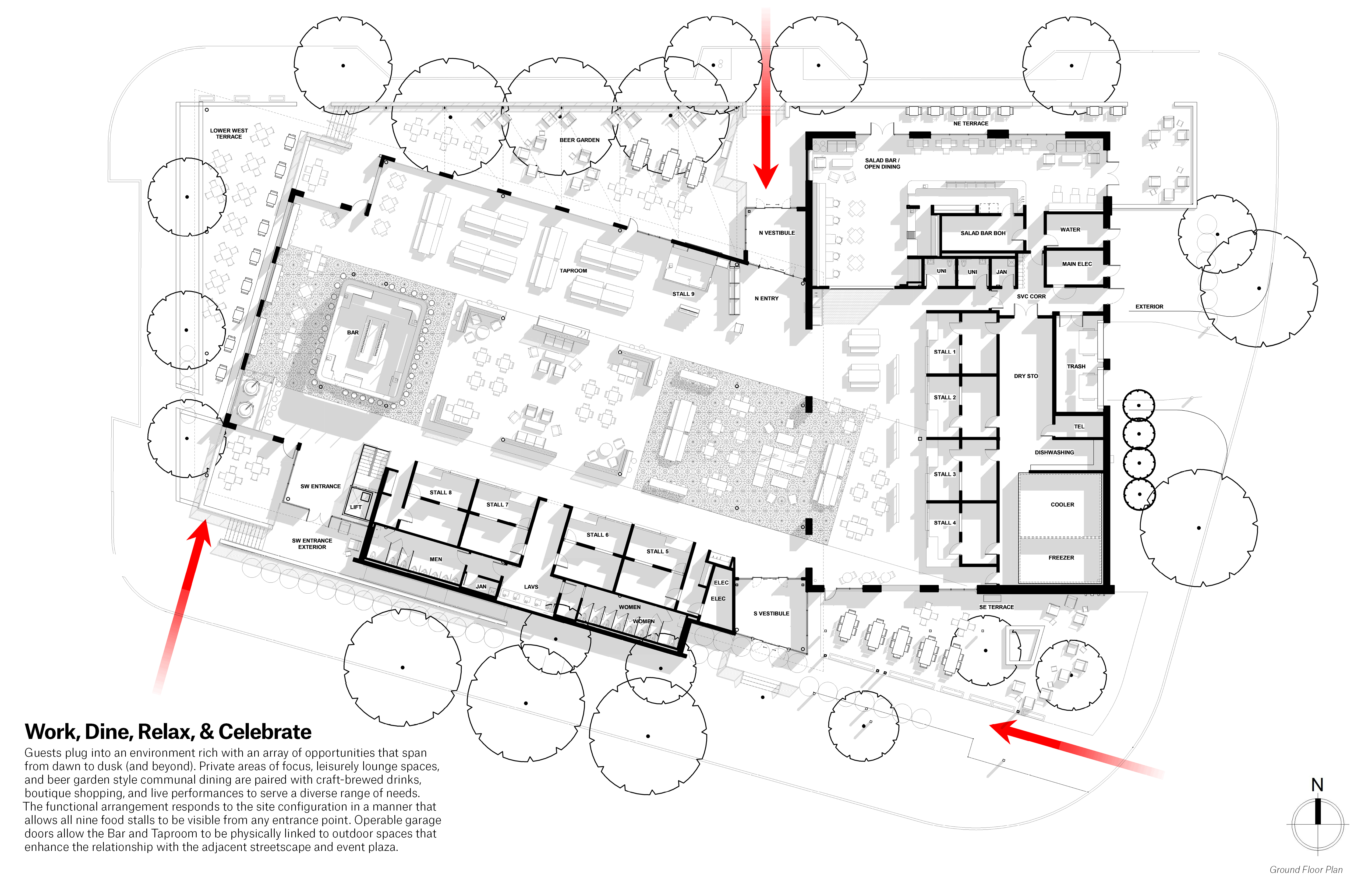
The Element Eatery Food Hall offers a welcoming sense of openness, where life and activity of interior and exterior environments are intertwined. The design responds to external influences from the existing conditions in the form of entrance placement and incorporation of outdoor communal gathering terraces and patios. More intimate dining environments reside within the eastern masonry volume. The western volume, a taller permeable space defined by exposed steel structure, supports more lively functions such as the taproom and beer garden. Food stalls are dispersed throughout both volumes to create a unified experience within the contrasting spaces.
Guests plug into an environment rich with an array of opportunities that span from dawn to dusk (and beyond). Private areas of focus, leisurely lounge spaces, and beer garden style communal dining are paired with craft-brewed drinks, boutique shopping, and live performances to serve a diverse range of needs. The functional arrangement responds to the site configuration in a manner that allows all nine food stalls to be visible from any entrance point. Operable garage doors allow the Bar and Taproom to be physically linked to outdoor spaces that enhance the relationship with the adjacent streetscape and event plaza.
Within the interior, discoverable design details are paralleled with the discovery of new flavors. Natural light, sustainable woods, concrete, ribbed glass, and steel define space to reflect the pursuit of culinary craftsmanship and honesty. Refined, yet industrial lighting fixtures compliment the aesthetic environment and control light levels matching the time of day and desired mood within the space . Biophilic elements are infused throughout to enhance the visual relationship between interior and exterior spaces.
At its core, Element Eatery is all about people. The project is intended to be a fun and approachable place that connects colleagues and members of the community across all ages around local food and beverages. The architecture is the backdrop, the people are the story.
Framework for Design Excellence Narrative
**#DESIGN FOR INTEGRATION**
Client Impact Statement
This project was created from Medpace/RBM Development recognition that their campus could go beyond serving their employees and become an asset to the community of Madisonville. Through a masterplanning exercise, our firm led the team to understand that densifying the site, introducing a mix of uses, and favoring pedestrian connections could transform the experience on their campus. The Element Eatery Food Hall currently serves as the most publicly visible representation of that campus transformation and evolution. It has been an attraction that has broken the previous boundary of a private corporate campus in favor of welcoming people from surrounding neighborhoods. It solidifies Medpace as a leader and good steward within the community that understands their ability to positively shape a place within the community.
Statement of Design Excellence
The Element Eatery project has been squarely focused on improving the daily human experience on this corporate campus. The design process embraced local vendors to understand what was needing in establishing a platform for local small businesses to thrive within the Food Hall environment and how they could be successful in connecting cullinary talents with citizens. Seeing the diverse range of users show up and regularly fill this project to its capacity nearly a year after its opening highlights that the design is an inclusive and approachable space within Madisonville.
**#DESIGN FOR EQUITABLE COMMUNITIES**
Community Engagement
Local businesses and vendors informed the design process to ensure that the space provided the framework and backbone for their businesses to thrive.
Transportation Choice Equity
Walk Score = 53, Transit Score = 37, Bike Score 42.
**#DESIGN FOR ECOSYSTEMS**
Site Environment: Suburban
Previously Developed Site? Yes
Does landscape consist of only native plants? Yes
Does the site align with Dark Sky Standards? No
Does the project utilize bird friendly design strategies? Yes.
Does the Landscape design provide habitat for local fauna and pollinators? Yes
**#DESIGN FOR ECONOMY**
Building Efficiency / right sizing: 106 sf/occupant
Does the project address issues of affordability? No
Does the project reduce built area by designing spaces for multiple purposes? Yes
Cost per Square Foot $475
Design for Economy Narrative
Through a shared parking analysis, this project makes use of existing parking facilities on campus and therefore, no additional parking was constructed in support of this project.
**#DESIGN FOR ENERGY**
Baseline & Code
Energy Code that the project was built to? IECC 2012
Benchmark EUI: 351 kBTU/sf/yr \*\*\*Generated based on building type
Estimated EUI based on Code: 263 kBTU/sf/yr \*\*\*Generated based on local energy code
Energy Performance
How are you reporting energy performance for this award submission? Modeled Energy
EUI Gross (Energy Consumed from all on-site sources): 263 kBTU/sf/yr
EUI offset from onsite renewables: 0 kBTU/sf/yr
EUI Net (Gross EUI minus energy offset from on-site renewables): 263 kBTU/sf/yr
Predicted reduction from Benchmark: 25%
Does the project meet the 2030 Challenge: No
Energy Conservation Process & Strategies
What type of energy model was performed? Code/Local Compliance
Was the energy model used to inform decisions during design? Yes
Did the project follow prescriptive performance to meet energy code? Yes
Design for Energy Narrative
An integrated roofing assembly and required building infrastructure to support an extensive rooftop photo-voltaic panel array have been designed into the facility. Although not currently installed, the system composed of 146.0 kW-DC Modules is expected to generate approximately 172,000 kWh annually. Once installed, this amount of on-site power will offset approximately 25% of the annual Element Eatery Food Hall energy consumption. The addition will enhance the current character and articulation of the roof and will serve as the fifth solar array within the Medpace development.
**#DESIGN FOR WELLBEING**
Do regularly occupied spaces have operable windows? Yes
Were glazing strategies studied to optimize daylight against excess heat gain? No
Is indoor air filtered with MERV 13 or better? No
Was ventilation, either natural or mechanical, optimized for occupant health? Yes
Is potable water treated or filtered prior to human consumption? No
Was a "Chemicals of Concerns" list used to inform material selection? No
**#DESIGN FOR RESOURCES**
Primary Structural System: Steel
Did the project incorporate existing structure or infrastructure? Yes
**#DESIGN FOR CHANGE**
What is the designed lifespan of the building? 100yrs
Was the building designed for disassembly? No
Was future flexibility designed into the program? Yes
Can the building remain useful for the short term without power? No
Can the building remain useful for the short term without utility power? No
Is the building designed to accept future clean grid power? Yes
Has the design made accommodations for projected climatic change? No
Identify a local risk that the project has been designed to mitigate: No
Design for Change Narrative
The building infrastructure and provisions within each of the food stalls are designed to support a wide variety of users. It is understood that businesses will come and go over time within this facility, and therefore the design of each stall seeks to accommodate that from a building systems standpoint. \n \n **#DESIGN FOR DISCOVERY**
Was a post occupancy evaluation conducted on this project? No
Wan an occupant satisfaction survey conducted? No
Were improvements made during occupancy based on findings? No
Design for Discovery Narrative
Although a formal post occupancy evaluation has not been conducted on this project, we remain connected with the ownership group and have not had any requests for project modifications after being open for nearly two years.
Photo Captions
3 - Aerial Photograph / Underlay: Chad Baumer
5 - Aerial Photograph from Hotel Entrance - Photo: Chad Baumer
7 - Southwest Entrance and Lower West Terrace - Photo: Chad Baumer
8 - Top: View Facing Lower West Terrace and Operable Facade Openings- Photo: Chad Baumer
Bottom: North Entrance from Public Parking Entrance - Photo: Chad Baumer
9 - Outdoor Beer Garden and Interior Taproom Space Beyond - Photo: Chad Baumer
10 - Top Left: Southeast Patio and Pedestrian Campus Walkway - Photo: Chad Baumer
Top Right: Southeast Patio and South Entrance - Photo: Chad Baumer
Bottom: Taproom Seating, Food Stalls, & Bar - Photo: Chad Baumer
11 - Bar / Taproom from Southwest Entrance - Photo: Chad Baumer
12 - Top Left: Operable Facade at Taproom - Photo: Chad Baume
Top Right: Bar and Dining Lounge with Food Stalls Beyond - Photo: Chad Baumer
Bottom Left: Bar / Taproom and Imported Custom Beer Tap Assemblies - Photo: Chad Baumer
Bottom Right: Dining Lounge with Bar and Outdoor Terraces Beyond - Photo: Chad Baumer
13 - Top Left: Salad Bar/Cafe Counter and Open Dining Beyond - Photo: Chad Baumer
Top Right: Salad Bar/Cafe Seating and Exterior Patio - Photo: Chad Baumer
Bottom: Grab and Go, Cafe, and Associated Seating Space - Photo: Chad Baumer
14 - Community Bench Seating - Photo: Chad Baumer
15 - Dusk View of Covered West Terrace - Photo: Chad Baumer
General Contractor
Skanska
Consultants
Gresham Smith – Architecture & Interior Design
222 Second Avenue South, Suite 1400
Nashville, TN 37201-2308
P: (615) 770-8100
Attn: Adam Nicholson, AIA
Brandstetter Carroll, Inc – Civil Engineering
2360 Chauvin Dr
Lexington, KY 40517
P: (859) 268-1933
Attn: Joseph P. Dillon, P.E.
Gresham Smith – Structural, Mechanical, Electrical, Plumbing, Fire Protection, Lighting
222 Second Avenue South, Suite 1400
Nashville, TN 37201-2308
P: (615) 770-8100
Attn: Andy Stoebner, P.E., S.E.
Human Nature, Inc. – Landscape Architecture
990 St Paul Dr,
Cincinnati, OH 45206
P: (513) 281-2211
Attn: Chris Manning, PLA. FASLA
Photography Credit
Chad Baumer

