Elliott School Condo Renovation
Carlton Edwards Architecture + Interiors
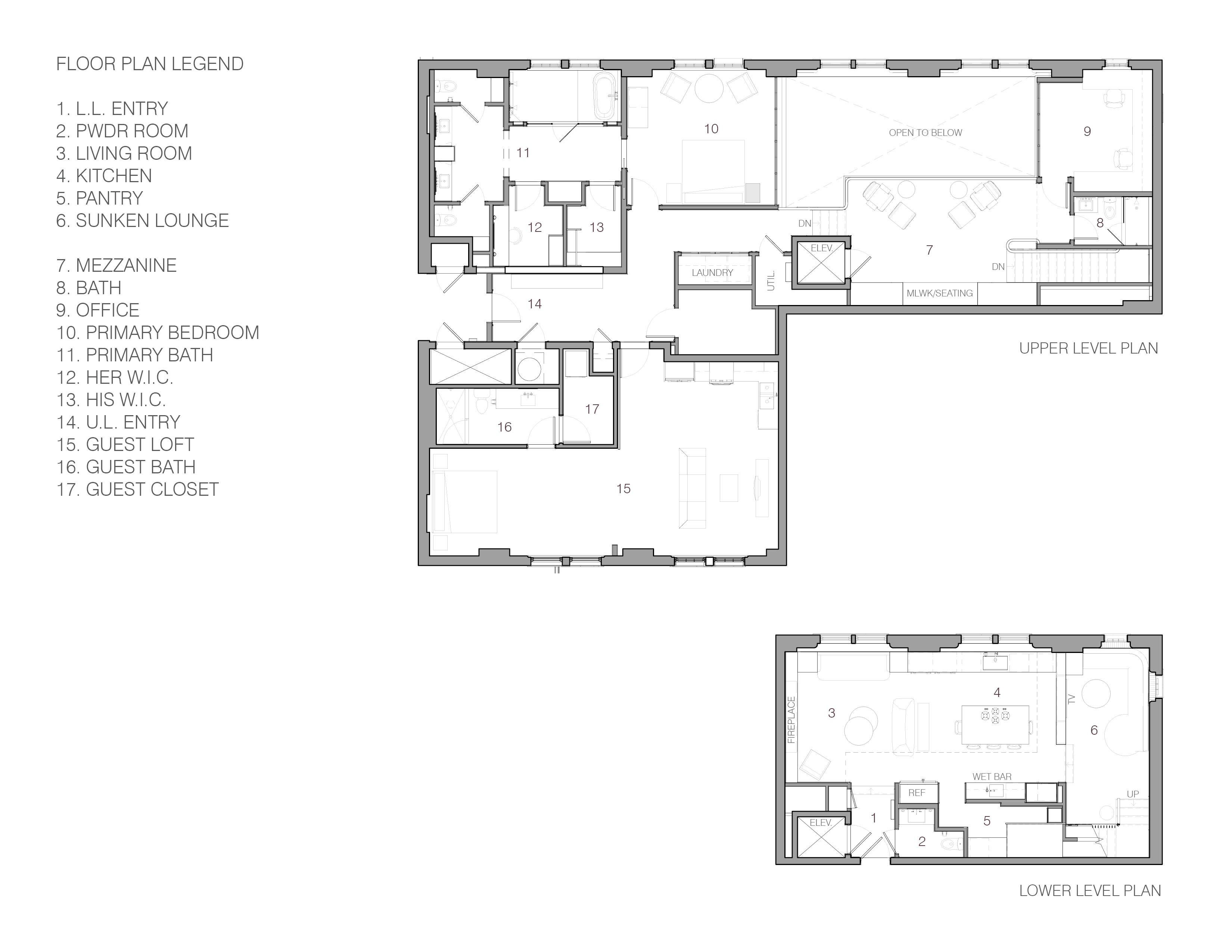
This condominium renovation, situated within a section of the former gymnasium, aimed to leverage the existing height and volume by creating a series of interconnected, multi-level spaces. The design incorporated interior steel windows, expansive lounge areas, and thoughtfully arranged secluded zones, fostering uninterrupted visual and physical interaction throughout the residence.
Awards Year 2024 |
Project Statement
This penthouse project, situated within the preserved historic Elliott School, presented a multifaceted design challenge. The primary goal was to skillfully harness the shell space layout where construction had already commenced, maximizing its impressive height, expansive volume, and dramatic potential. A secondary challenge arose from the owner's acquisition of the adjacent condominium on the second level, where the charge was to seamlessly integrate these two distinct units, ensuring a fluid and harmonious transition between them. Our response was to provide two points of entry, one on each level. With an expected frequency of out-of-town long term visitors, this would allow them to have their own entrance and exit and not disturb the day to day of the homeowners.
As the architectural program and interior design progressively evolved, unforeseen opportunities began to surface. One such opportunity allowed for the strategic capture of a portion of the two-story volume to create a dedicated office area. This space was designed to offer a captivating and focused view of the State Capital Building, imbuing the workspace with a distinct sense of place while at the same time not allowing for a disconnect to the adjacent living areas at the same level and below.
Both the physical and visible connectivity between all spaces were important to the client. The design response was to install a series of steel and glass warehouse-style windows that provided a solution for both needs, and also allowed for the two story space to not feel as if the lower level occupants were in a silo.
For the interior architecture and design, rope-clad chandeliers paid homage to the gymnasium, school desk-inspired cabinetry was designed for the kitchen and bathrooms, and retaining the existing exposed steel trusswork were a few of the design moves made to embrace the historical past of this space. The client worked in the medical field, and the millwork in the upper level lounge was designed using the Sanger Sequencing Method as the main concept driver.
Framework for Design Excellence Narrative
# DESIGN ETHOS
**The principles of our design and approach to this renovation were to respect the existing historical relevance to the overall development while providing a modern live/work style approach to condo living.**
## DESIGN FOR WELL BEING
**By ensuring all primary inhabited spaces had access to either a view of ample ambient lighting via the plan layout and the use of interior glass partitions, the occupants have both a physical and subconscious connection to the outdoors, a feature often not provided in similar space.**
## DESIGN FOR CHANGE
**luxury penthouse living does not require the building to be of new construction, but rather a forward thinking approach and combination of spaces that prove there are opportunities everywhere within the urban fabric, particularly in the Germantown neighborhood. This build-out signified both a successful solution to the client’s requirements, but also how a space like this does not need to be overbuilt to achieve comfortable living.**
## DESIGN FOR RESOURCES
**By building on construction that had already begun, we were focused on efficiency from both a design standpoint and material usage/waste. Reclaimed wood flooring from the region was specified, along with locally built custom interior glass windows and walls. Natural daylight available to the majority of the inhabitable spaces resulted in a substantial decrease in reliance on artificial lighting throughout the day.** \n
\\
Photo Captions
2- Floor Plans
3- Level 1 Entry view with a funneled vignette to existing windows beyond.
4- The existing steel structure is expressed and embraced within the composition of the fireplace wall.
5- The living room view to the office above shows the multi-level interaction between the interior spaces.
6- Sunked lounge with a layered view to the vaulted kitchen space beyond.
7- Steel windows in the office and Primary Suite beyond allow for connectivity through a variety of mediums.
8- Millwork inspired by the owner’s affinity for DNA sequencing and the desire to incorporate it into the design.
9- Abundant natural light is allowed into the Primary bedroom through the custom and locally made steel windows.
10- Primary Suite Vignettes of the bathroom and view to bedroom area.
11- Primary Suite Interior Elevations and details.
12- Clockwise from top left: Kitchen open to all spaces; Mezzanine lounge looking towards Primary Suite; Lower Lounge view towards Living Room.
General Contractor
N/A
Consultants
Berschback Design (Interior Furnishings)
Ruth Alwes Engineering (Structural Engineering)
Photography Credit
Carlton-Edwards for all site photos.
Calrton-Edwards for all renderings.

