Green Hills Residence
Price Harrison Architect and Associates PLLC
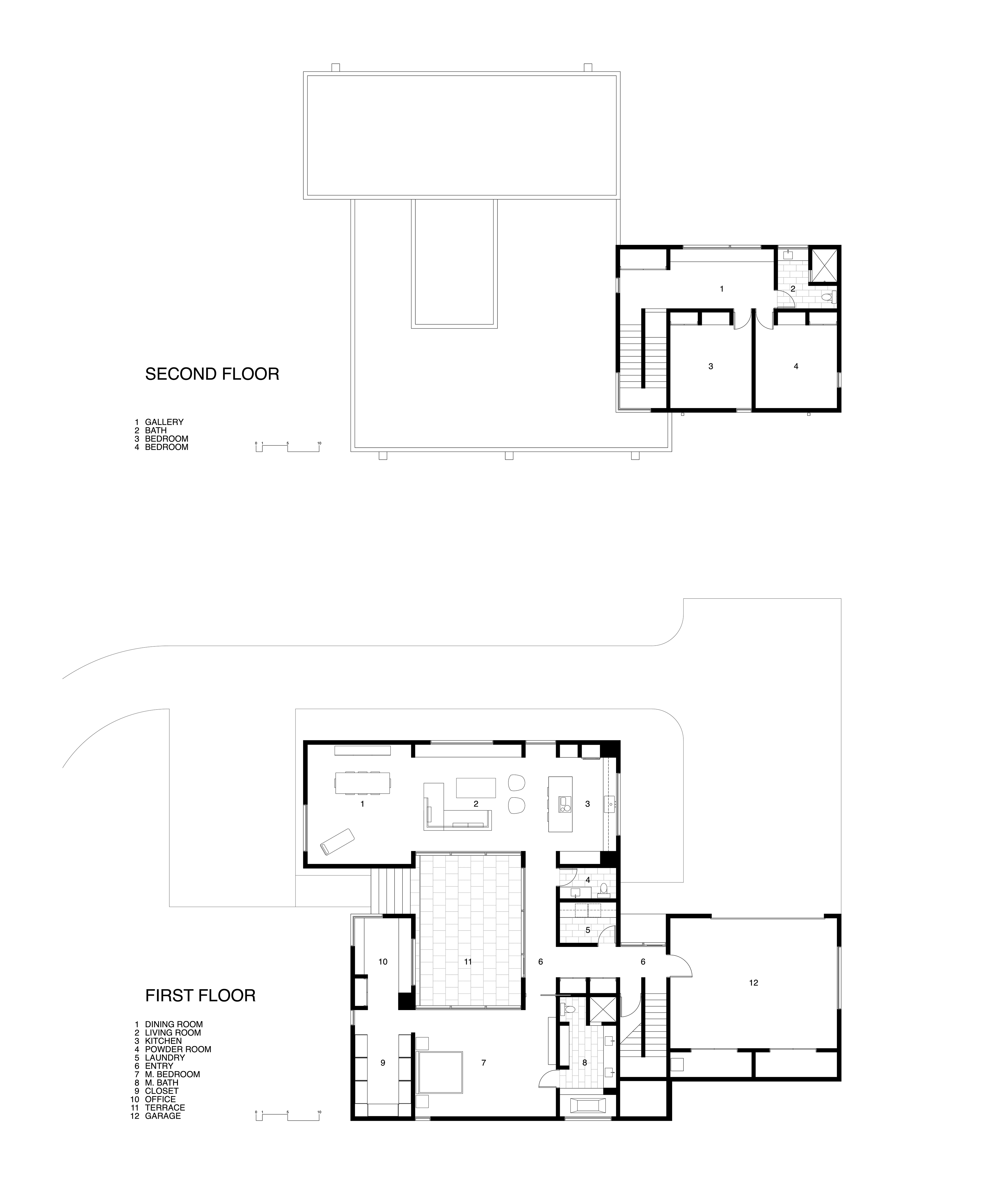
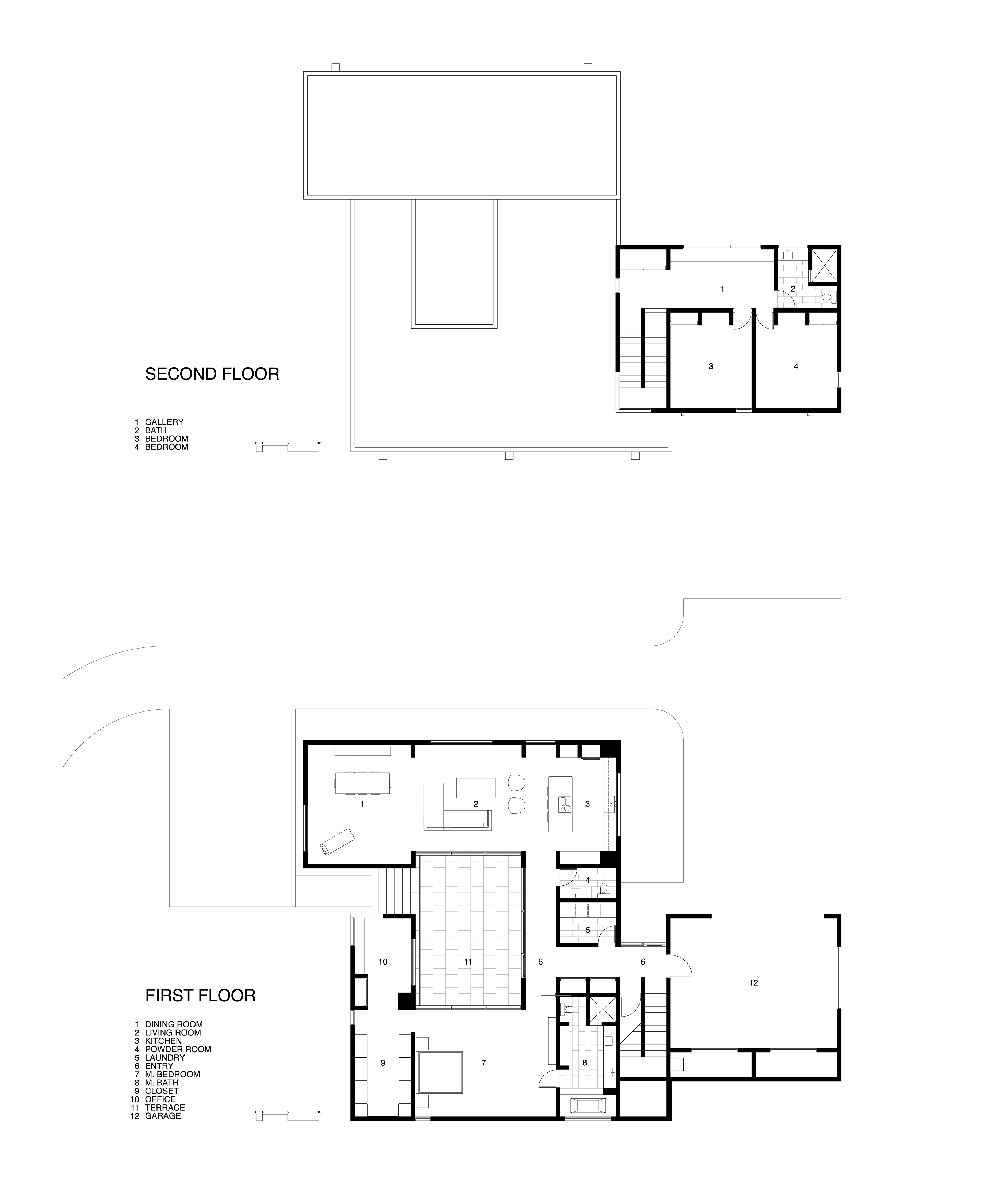
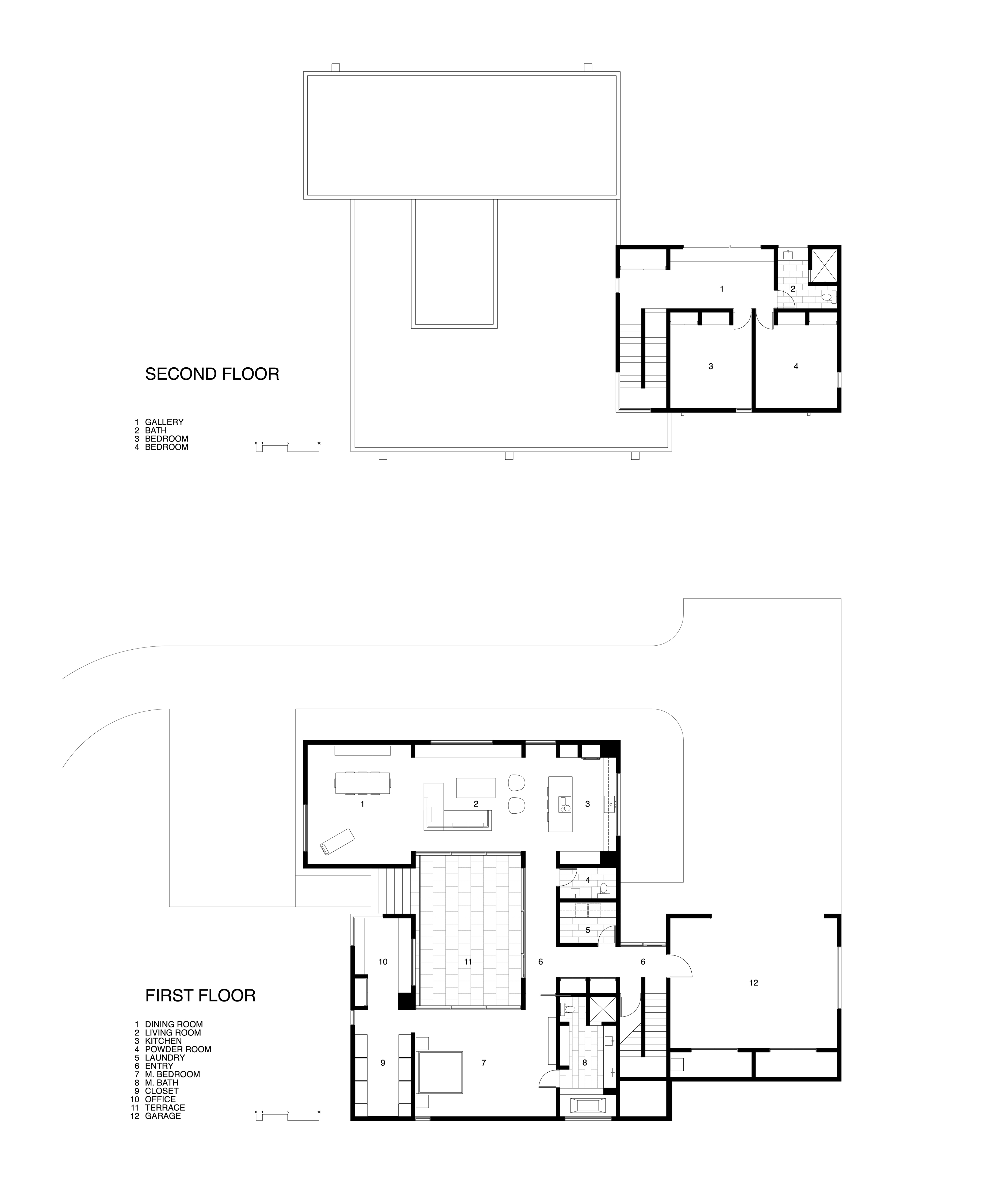
The program was to design a 3400 square foot residence. The living spaces on the main floor are composed around an external courtyard.
Awards Year 2024 |
Project Statement
The residence is situated on a beautiful one acre sloping site in the neighborhood of Green Hills in Nashville, TN. This project was designed as a set of cubic volumes arranged around an outdoor courtyard. The 3400 square foot home functions as a backdrop for the owner’s extensive collection of photography and minimalist art. The program allows the owners to live on the ground floor with two guest bedrooms on the second level.
The house is clad with a dark anthracite colored concrete stucco. The windows are floor to ceiling black anodized aluminum frames. The enclosed outdoor courtyard floor is a flamed black granite. The perimeter of the courtyard is glazed, allowing for expansive interior views of the lower floor.
The interior was designed to create a cohesive and neutral setting for the owner’s art
collection. The furniture and fabrics were selected in a range of silvery grays and muted blacks. The monochromatic material palette highlights the color in the artwork and glass
accessories. A custom rug was designed for the living area by the architect. The wide plank flooring is a white stained engineered quarter sawn oak.
The cabinets in the house are finished with a white conversion varnish with Wenge veneer accents. The kitchen was designed with a blackened Wenge veneer and white Cambria counter tops. The all-electric house features high efficiency mechanical systems and kitchen appliances.
Framework for Design Excellence Narrative
ENERGY
\n
This residence is an all electric building using state of the art Mitsubishi heat pump technology to optimize comfort and conserve energy. The building utilizes a high efficiency glazing system and foam insulation to optimize the envelope performance. All lighting in the project is LED.
\n
WELL BEING
\n
The use of light / white painted surfaces achieves natural daylighting in all major spaces. Acoustic diffusion in the living and dining areas improve the environment for communication. Electronic sensors for particulate pollution, CO2 and radon were installed to monitor air quality. The crawl space has a vapor barrier and a 4” concrete slab to mitigate humidity levels combined with a dehumidifier to assist the primary HVAC system. All coatings and paints are low VOC products. All fabrics are made of natural fibers and leathers.
\n
RESOURCES
\n
This project was designed to require minimal maintenance over the life of the building. There are no painted elements on the exterior that will require re-coating. The stucco assembly includes an internal rainscreen to prevent moisture buildup inside the wall cavity. This reduces the formation of mold and extends the life of the concrete stucco.
\n
\n
Photo Captions
1. Front view from street.
2. Living area looking toward dining area.
3. Living spaces wrap around an external courtyard.
4. View of residence looking northwest.
5. View of entry.
6. Kitchen view showing Wenge veneered cabinetry.
7. Master bedroom
8. Powder room, Stairwell
9. Dining area looking toward kitchen.
10. Ceiling cloud detail.
11. Dining area.
12. Living area.
13. Site plan
14. Floor plans
15. Elevations
General Contractor
Stone Ridge Custom Homes, Mick Rhodes
Consultants
Photography Credit
©Keith Isaacs

