Investment Management Office
HASTINGS Architecture
An established New York investment firm expands to Nashville’s Wedgewood-Houston with a new office that blends urban sophistication with Southern warmth. Set atop the Nashville Warehouse Company, the space uses expansive views, bold geometry, and rich materiality to reflect the firm’s evolving identity, confident, grounded, and distinctly dual in character.
Awards Year 2024 |
Project Statement
An established investment management firm headquartered in New York introduces its Southern counterpart in Nashville’s dynamic Wedgewood-Houston neighborhood. Perched on the top floor of the Nashville Warehouse Company, the new office is intentionally positioned to maximize sweeping views—northward to downtown and south and east to the broader cityscape. These vistas shape the project’s spatial experience, with communal gathering areas-oriented outward to engage the city as a natural extension of the workplace.
The program includes open work areas, an employee café, generous entertaining zones, and a boardroom with a commanding view of downtown. The client’s vision was clear: to create a space that honors the refinement of their New York brand while embracing the warmth, charm, and distinct identity of its Southern setting. The result is a thoughtful interplay of contrast and continuity space that confidently establishes its own identity while remaining rooted in legacy.
At the core of the design is a conceptual framework of structured separation. Angled, diagonal walls choreograph the spatial rhythm and define key zones, introducing movement and momentum. These bold geometries reinforce the firm’s forward-thinking ethos and help shape a cohesive, navigable experience.
Vertically, the interior leverages the mass timber structure’s gabled volume to its full advantage. Public-facing zones, such as the café and boardroom, showcase the exposed timber ceiling, enhancing openness and volume. In contrast, private offices and meeting rooms are designed with lowered ceilings that compress space—offering moments of quiet, focus, and retreat.
This calibrated tension between expansion and containment reinforces the firm’s dual character: poised and approachable, refined yet expressive.
Materiality bridges the geographic and cultural shift. Clean, high-touch finishes reflect the polish of the firm’s urban roots, while natural woods, textured elements, and artisanal details bring a distinctly Southern sensibility. The result is a workplace that feels both elevated and inviting.
Ultimately, the Nashville office is more than a physical outpost—it’s a spatial expression of the firm’s evolving identity. Through thoughtful planning, material richness, and architectural clarity, the design celebrates growth while honoring original testament to a brand that is grounded, confident, and ready for what’s next.
Framework for Design Excellence Narrative
1. Design for Well-Being: This office is thoughtfully designed to enhance user well-being by maximizing access to natural light and panoramic views. The layout strategically leaves sightlines open or aligns interior glazing with the building’s exterior windows, while fully enclosed spaces are anchored along the building core or against solid exterior walls. This approach ensures a bright, airy interior that maintains a strong visual connection to the outdoors. The space adopts a gallery-like quality, punctuated by lounge “jewel boxes” where soft furnishings, vibrant artwork, and lush plantings offer inviting areas for rest, reflection, and informal gathering. These zones provide moments of respite while reinforcing a sense of calm and comfort throughout the workday. A dedicated wellness suite, including private restrooms, showers, a kitchenette, and a serene wellness room—offers occupants a secluded, restorative space separate from the public areas of the multi-tenant building. Additionally, a spacious outdoor terrace allows users to step outside for a breath of fresh air, enjoy lunch in the sun, or work in a relaxed environment high above the street—further supporting physical and mental well-being.
2. Design for Resources: The design thoughtfully celebrates the building’s mass timber structure, highlighting its inherent beauty and sustainability. The dramatic pitched roof is left exposed to open areas, creating a warm, textural backdrop that reinforces the architectural identity of the space. A restrained, minimalist material palette was carefully selected to prioritize environmentally responsible products and reduce waste. This includes modular carpet systems with embodied carbon offset commitments, demountable partition walls to support future adaptability while minimizing demolition waste, and sustainably sourced engineered wood flooring used throughout. By maintaining consistency in finishes, the design ensures long-term flexibility—allowing private offices and meeting rooms to evolve with shifting programmatic needs over time, without requiring significant material overhaul. The project also proudly incorporates the work of local craftspeople, whose expertise was instrumental in realizing the main lounge and café area. Custom millwork and a handcrafted communal table anchor this central space, providing a warm and functional gathering area large enough to bring the full team together—an embodiment of both resource-conscious design and community collaboration.
3. Design for Discovery: This project is uniquely positioned within a broader context bookended by the recent completion of another space within the same building and a forthcoming project on the mirrored half of the floor plate. As such, it served as both a culmination of prior knowledge and a testing ground for future work. Lessons learned from the earlier phase were instrumental during site selection and coordination, providing a valuable foundation for addressing the opportunities and challenges inherent to the mass timber structure. One of the primary design challenges was navigating the sheer scale of the space created by the dramatic pitched roof. Establishing a sense of human scale within this volume requires deliberate architectural gestures and informed the evolving strategies for the future adjacent project. Continued engagement with the nuances of designing within a mass timber structure, both technical and spatial, deepened the team’s expertise and informed each subsequent decision. The experience of space itself is one of layered discovery. Upon entry, users are first greeted by a smaller-scale stone-clad niche, a moment of intimacy and grounding. From there, the plan opens dramatically, revealing expansive volumes of light and air framed by the soaring, exposed wood ceilings. This deliberate progression, from compression to release, creates a dynamic spatial journey, encouraging exploration while emphasizing the architectural qualities of the structure itself.
Photo Captions
1. The custom reception desk sits in a niche encased in floor to ceiling stone
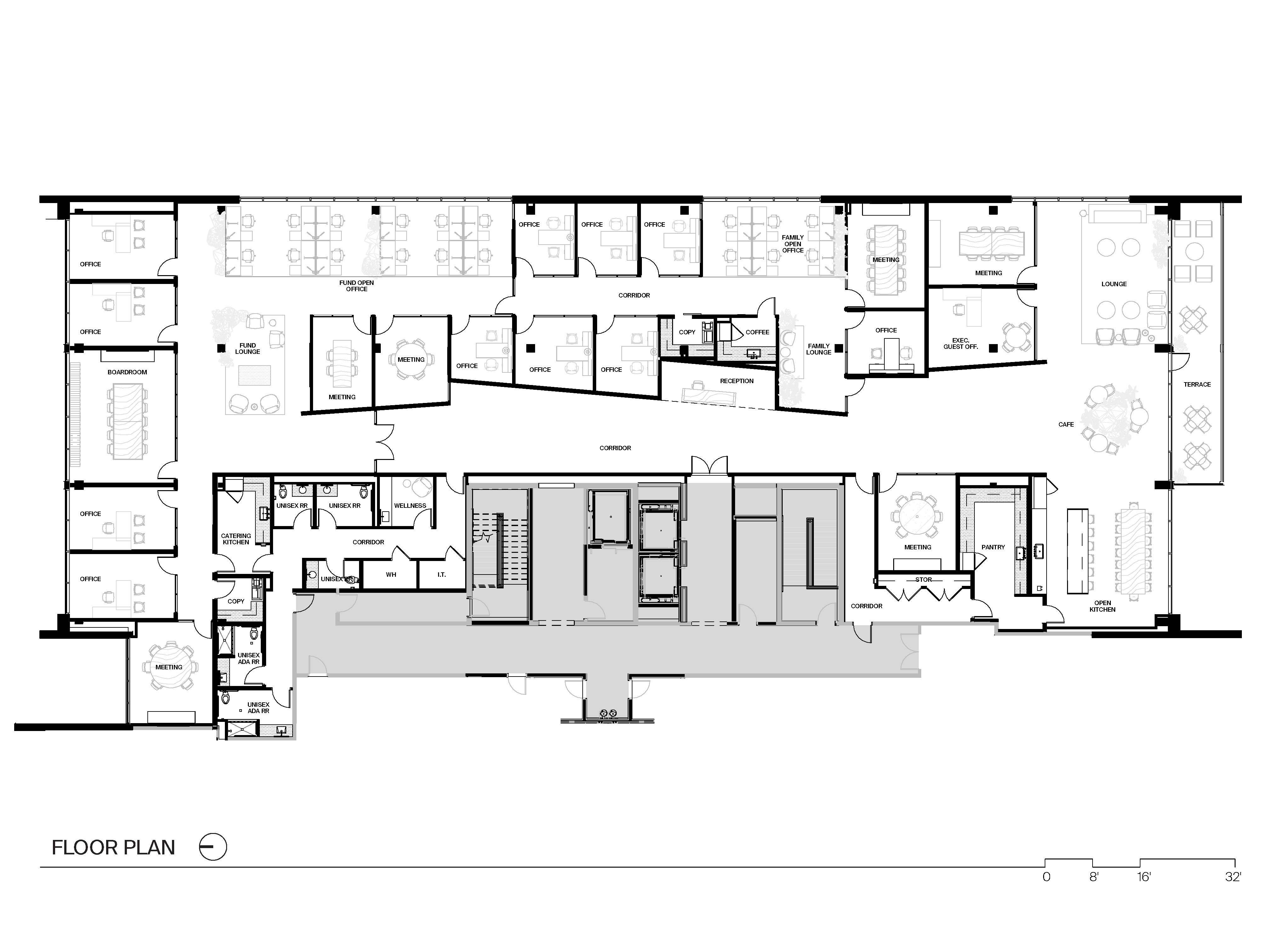
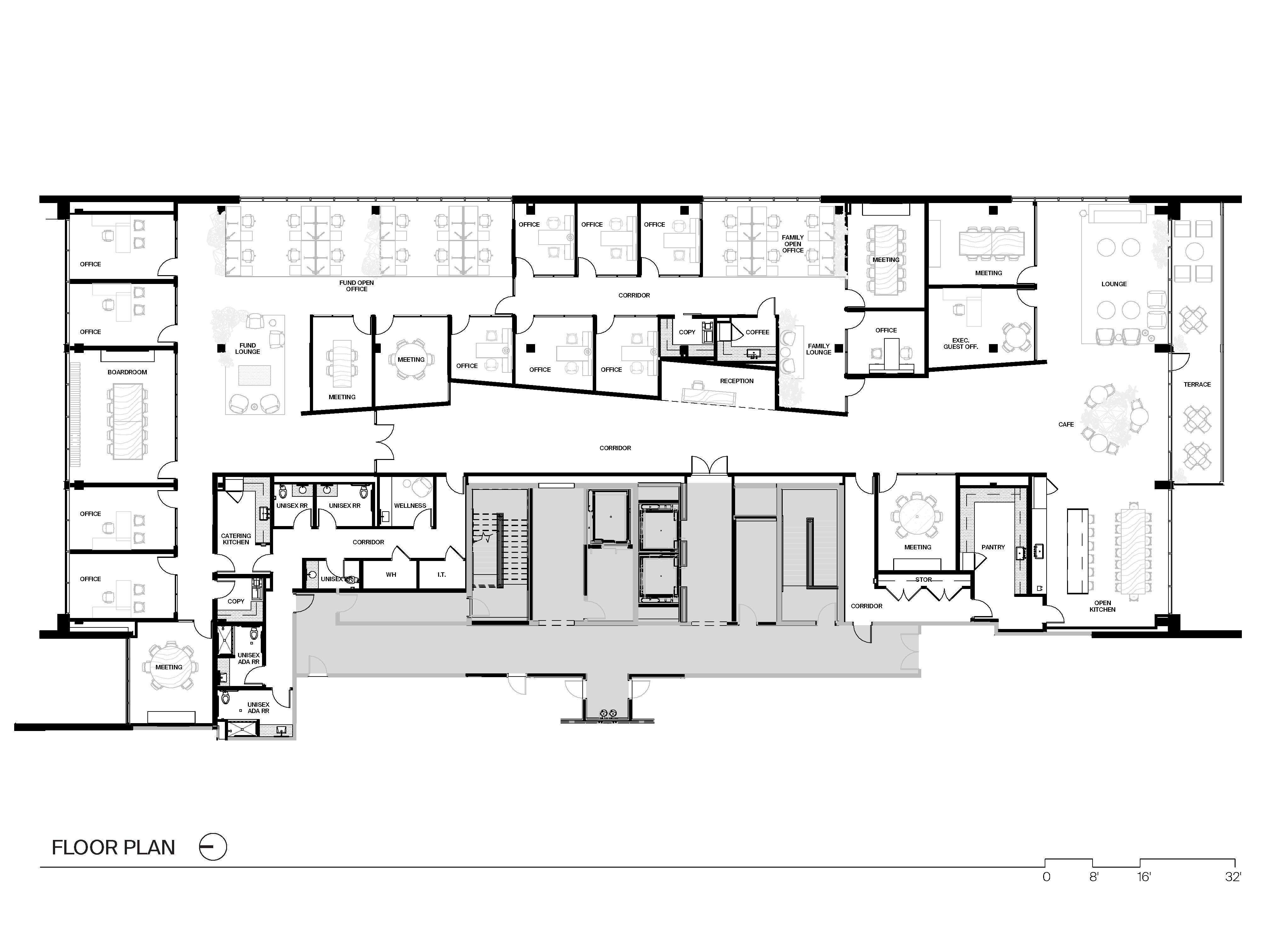
2. Floor Plan
3. The open kitchen and lounge space to the south serve as a hub for gathering and hospitality.
4. Rich walnut paired with polished stone bring notes of the firms New York origins to the new southern office space.
5. Ceiling scale strategies vary between fully exposed to deck, floating masses, and fully enclosed zones which converge in the open office area.
6. The Fund Lounge brings softness and color to the gallery like open office area.
7. Centered on the north end of the space and the pitch of the roof, the boardroom looks out to the city skyline with full height glazing and light fixtures expressing the height of the space.
8. Clean architectural details pair with warm, textured furniture and lounge spaces.
General Contractor
DPR Construction
Consultants
MEP Engineer – Enfinity Engineering
Structural Engineer – EMC Structural Engineers
Acoustics - Kirkegaard
Furniture – Ai Corporate Interiors
Millwork – Cumberland Millwork
Lighting Design – Bluebird Lighting
Lighting Design – FSA Lighting
Photography Credit
© Emily Dorio

