KIPP Antioch Global Campus
MZA Architecture + Interiors
This Adaptive Reuse project transformed a two-story, 200,000 SF department store into an educational campus serving over 1,200 middle and high school students. The design challenge began with the existing building, which featured large floor plates and little access to natural light. The realized project succeeds by reimagining existing elements as light-filled atriums and organizing spaces around these elements.
Awards Year 2024 |
Project Statement
The project’s program includes 200,000 SF of classrooms, offices, and auxiliary spaces serving middle and high school students. One of the client’s design parameters stated every classroom should have access to natural light. We added our own parameters: the design should respond to the existing building without being beholden to it; the design should blur the lines between rooms and circulation, inside and out; and each move of the design should be in response to the primary goal of providing natural light.
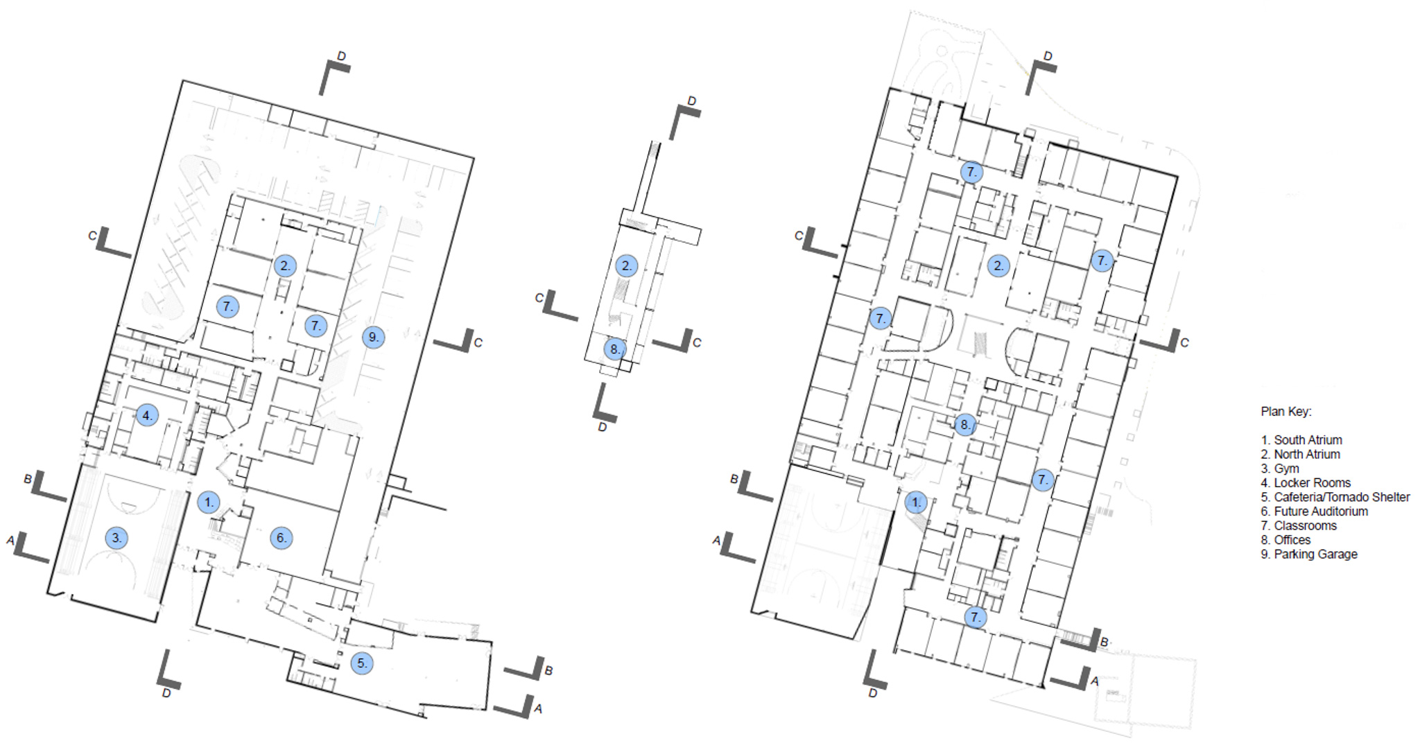
Our process began from the interior to exterior, analyzing the existing building to determine what could be reused, what could be repurposed, and what should be added. We quickly discovered that the building was two sections - north and south - loosely connected inside by two large escalator openings.
These existing escalator volumes are reimagined as north and south atria and become the defining elements of the realized design. Unit skylights are strategically placed over the atria to maximize daylighting and minimize the impact on the existing roof structure. Spaces are organized around and open onto these atria, providing access to natural light for the building’s deep interiors.
The building’s south section serves as the school’s public face, and the escalator-turned-atrium is a hub between the gym, cafeteria, and future auditorium spaces. Interior glazing is utilized around this space to share daylight from the atrium and visually connect the public functions of the building.
Classrooms and offices are arranged around the north atrium. The existing building’s floor to floor height is just over twenty feet, and the north atrium utilizes this volume by incorporating a mezzanine between floors. Multiple paths converge around this atrium and across each floor, encouraging activity and interaction in and around the space. The shared lighting concept extends to the rest of the second floor, where corridors are organized around unit skylights.
Outside, the amount of existing pervious surfaces is reduced by about one half using generous landscape islands and the inclusion of a regulation soccer field. Parking and circulation are redefined in response to the pitch, and utilize existing building entries to orient public, bus, and car-rider zones.
With thoughtful, cost-effective interventions, we transformed an underutilized suburban relic into a campus that provides a joyful environment where students can grow and feel inspired to create a better future.
Framework for Design Excellence Narrative
### DESIGN FOR CHANGE AND COMMUNITY
Prior to this adaptive reuse effort, the existing building and associated acres of parking sat vacantly for over a decade. The strategies used in the building’s interior design, public facing improvements to the building’s façade, and site plan act as a catalyst for positive change in the local community.
### DESIGN FOR RESOURCES AND WELL-BEING
An important part of this project’s success is organizing new sources of daylight around existing conditions. Minimal work was done to exterior walls that could be reused, existing openings between floors are reimagined, and daylighting strategies are located so as not to conflict with existing structure. In these ways, the design provides an active, light-filled user experience while maintaining as much of the existing building as possible.
### DESIGN FOR ENERGY
The existing roof featured little or no insulation and a failing membrane. Because this roof would need to be renovated to meet Energy Code, daylighting strategies focused primarily on the roof. By allowing natural light from above, the design minimizes alteration to the existing exterior walls.
Existing energy loads were reduced by providing natural light to offset artificial light loads, replacing existing HVAC with energy efficient units, and adding continuous insulation from the roof to walls. A completed energy audit notes the projected energy consumption for the renovated building is reduced by over 50% from existing.
Photo Captions
02\_ KIPP Antioch Global Campus - Existing Conditions Analysis and Daylighting Diagrams
03\_ KIPP Antioch Global Campus - Daylighting Diagrams
04\_ KIPP Antioch Global Campus - Public Entry – South Atrium
05\_ KIPP Antioch Global Campus - South Atrium
06\_ KIPP Antioch Global Campus - Gymnasium
07\_ KIPP Antioch Global Campus - North Atrium
08\_ KIPP Antioch Global Campus- North Atrium, Mezzanine
09\_ KIPP Antioch Global Campus - Typical Classroom Corridor
10\_ KIPP Antioch Global Campus - Floor Plans
Finished photographs courtesy of Andrew Keithly
General Contractor
Chris Scheide – DF Chase/Chase Construction Group
Consultants
Jeff Hooper – Barge Civil Associates (Civil Engineer)
Connor Ball – Heibert + Ball Land Design (Landscape Architect)
Ben Faris – EMC Structural Engineers (Structural Engineer)
Nick Perry – Quest Design Group (Fire Protection, Mechanical/Plumbing)
Oakley Christian – C.O. Christian & Sons Co., Inc. (Electrical Engineer
Photography Credit
Andrew Keithly Photography

