Maslow Residences
HASTINGS Architecture
Located in the heart of vibrant Wedgewood Houston, Maslow is a new condominium project designed for the urban essentialist. By offering a diverse range of dwellings from micro units to penthouses, Maslow was programmed to fill an ownership attainability gap for those who wish to buy into one of Nashville’s fastest growing neighborhoods.
Awards Year 2024 | Merit Award
Project Statement
Nashville’s recent growth has pushed into Wedgewood Houston, a historically diverse community of makers, with a mix of for rent apartments and large townhomes. As a result, existing residents can’t afford to stay, and new residents are coming in with little opportunity to invest in the neighborhood. From the outset of this project, the team sought to counteract this two-part ownership crisis by bringing a for-sale product composed primarily of micro units that could be purchased at attainable prices. The spectrum of units provides buyers with a variety of entry points, while creating future opportunities for residents to upsize their homes without leaving the building. Additionally, where before there was no pedestrian realm, Maslow functions as an important stitch in the streetscape between the residential heart of the neighborhood and its commercial core. Building on the design for equitable communities strategies, but turning focus onto the end user, the design concept for this project sought to provide an integrative architecture that reinforced the hierarchy of needs as laid out by psychologist Abraham Maslow. The thesis being that the end users would be self-actualized individuals who value the essential over excess. To this end, the design team compiled a list of every function and luxury one might desire in a home. Indexed into the essentially private, fittingly semi-public and preferably public, these indices informed the program of the units, the types and locations of amenity spaces contained within the project and finally, the operations that owners could rely on the neighborhood to provide, thus reinforcing the symbiotic relationship of the owners and the surrounding community. Building on the foundations of strengthening the community through housing diversity and developing a project whose end user program prioritizes what is essential over excess, Maslow is full of moments designed for well-being. Residents’ amenities including a wellness space, open air porches, vertical garden and residents’ library are given priority of place over individual units. Each amenity space prioritizes natural light, fresh air and opportunity for intersection for residents. The exterior material palette favors durable materials that will age gracefully in the Nashville’s wide ranging climate zone.
Framework for Design Excellence Narrative
Design for Equitable Communities –
Nashville’s recent growth has pushed into Wedgewood Houston, a historically diverse community of makers, with a mix of for rent apartments and large townhomes. As a result, existing residents can’t afford to stay, and new residents are coming in with little opportunity to invest in the neighborhood. From the outset of this project, the team sought to counteract this two-part ownership crisis by bringing a for-sale product composed primarily of micro units that could be purchased at attainable prices. The spectrum of units provides buyers a variety of entry points, while creating future opportunities for residents to upsize their homes without leaving the building. Additionally, where before there was no pedestrian realm, Maslow functions as an important stitch in the streetscape between the residential heart of the neighborhood and its commercial core.
Design for Integration –
Building on the design for equitable communities' strategies, but turning focus onto the end user, the design concept for this project sought to provide an integrative architecture that reinforced the hierarchy of needs as laid out by psychologist Abraham Maslow. The thesis being that the end users would be individuals who value the essential over excess. To this end, the design team compiled a list of every function and luxury one might desire in a home. These were indexed into the essentially private, fittingly semi-public and preferably public. These indices informed the program of the units, the types and locations of amenity spaces contained within the project and finally, the operations that owners could rely on the neighborhood to provide, thus reinforcing the symbiotic relationship of the owners and the surrounding community.
Design for Well-being –
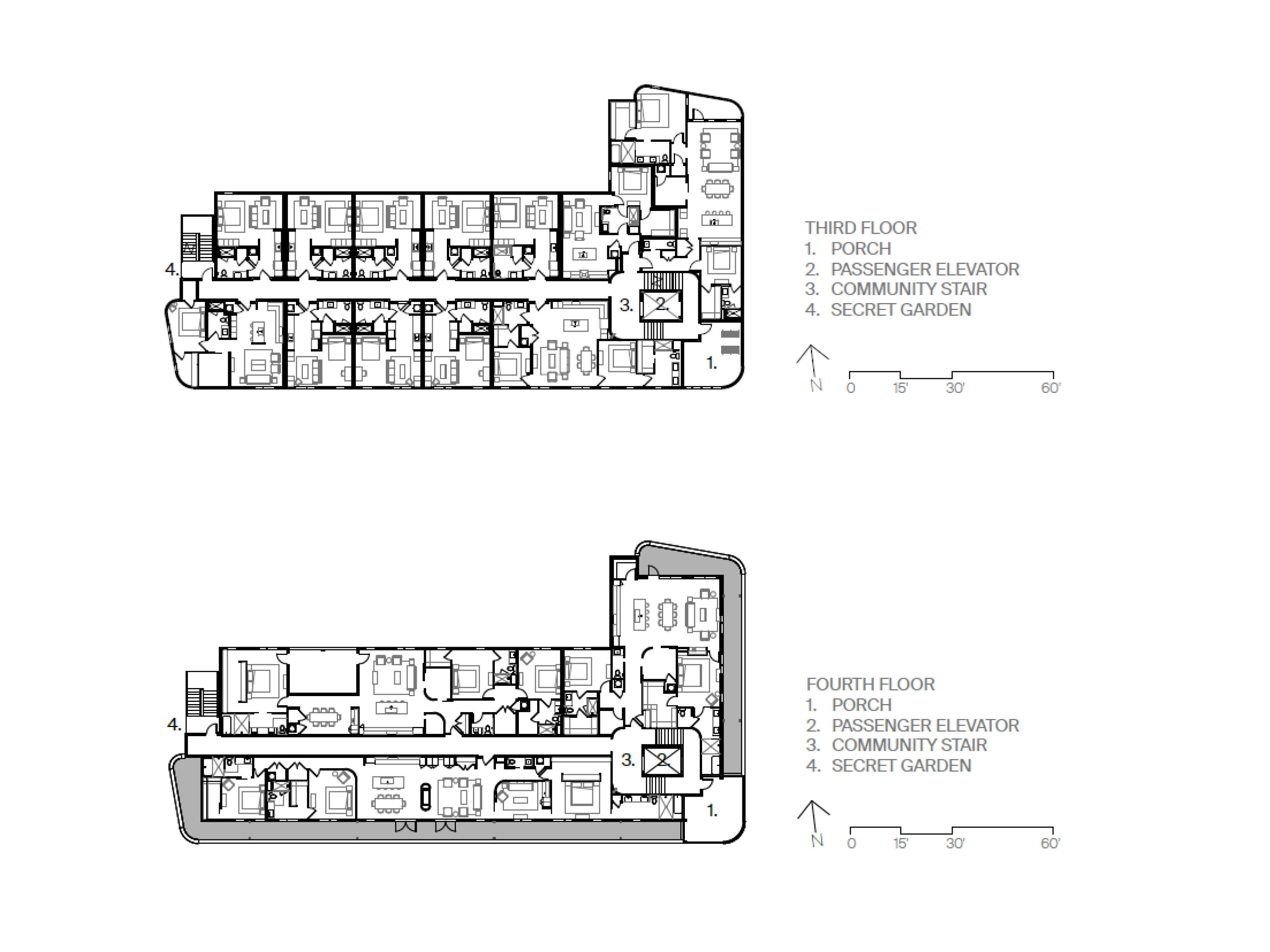
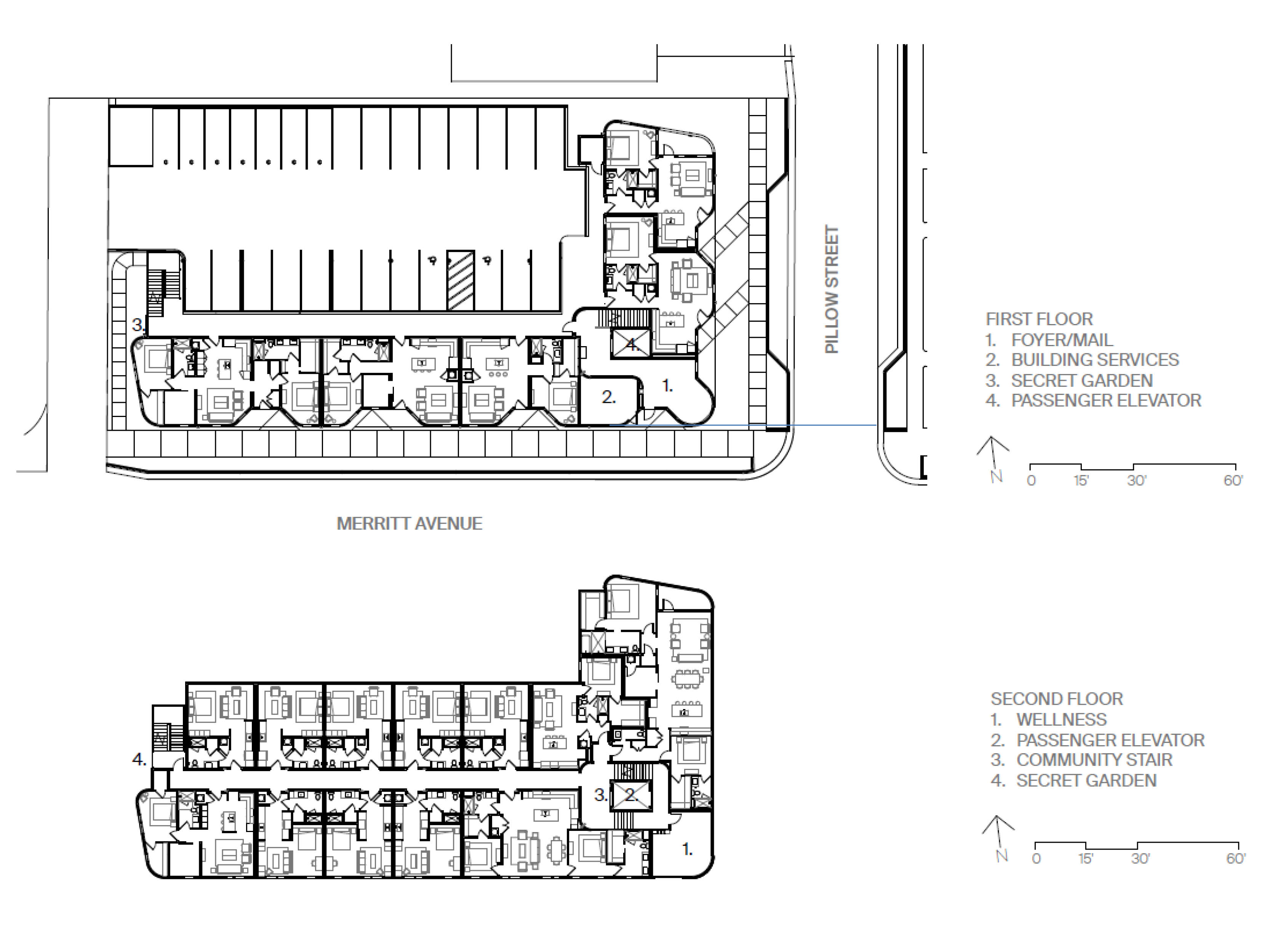
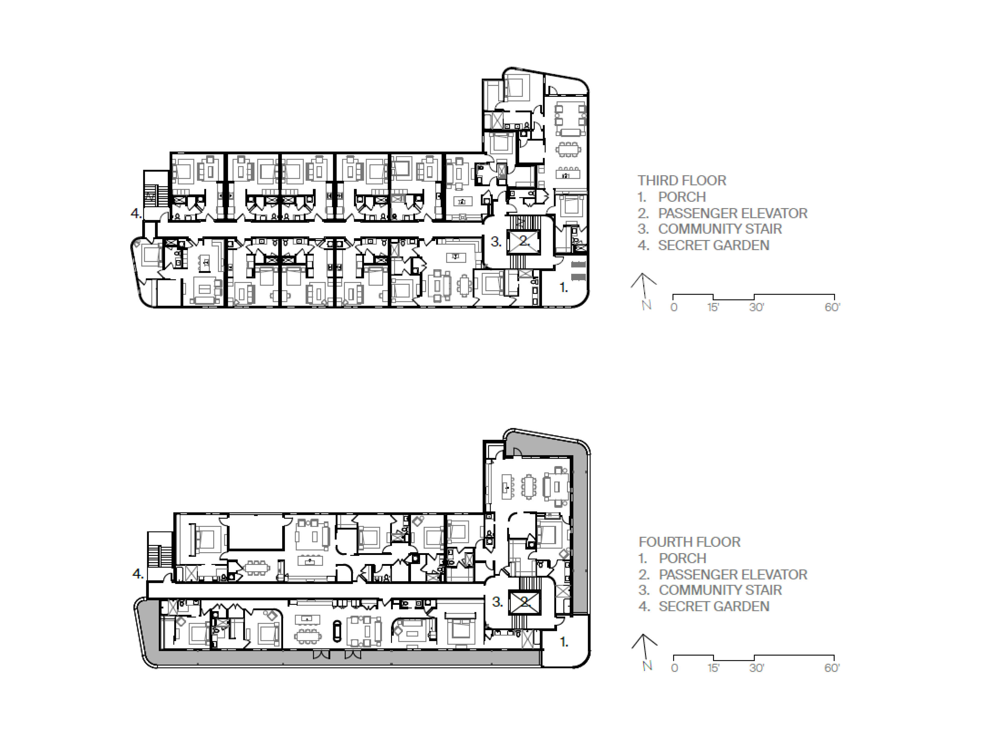
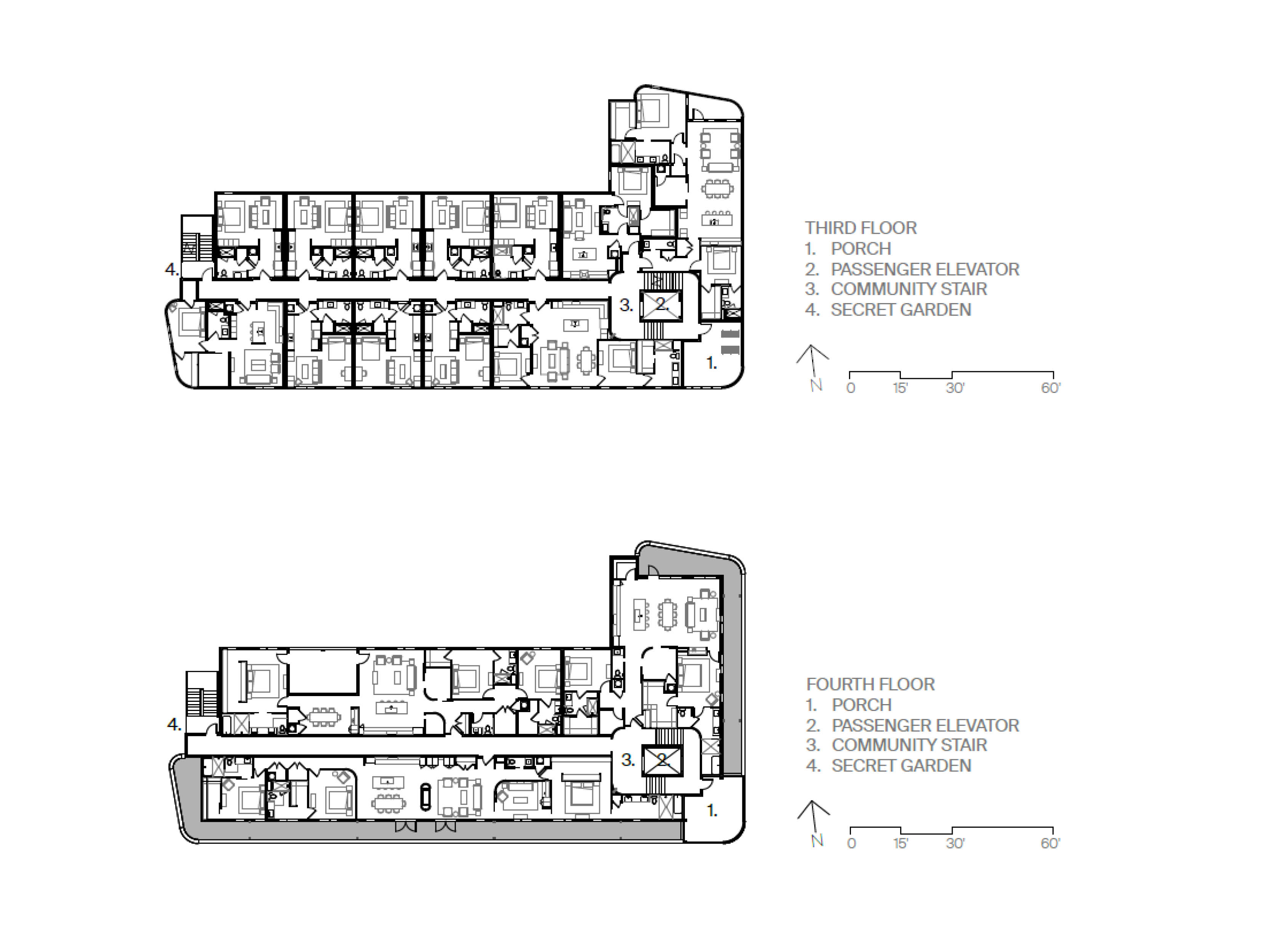
Building on the foundations of strengthening the community through housing diversity and developing a project whose end user program prioritizes what is essential over excess, Maslow is full of moments designed for well-being. Residents’ amenities are organized at interstitial landings of a monumental stair that wraps the elevator core. Anchored by the lobby with wellness room and two residents’ porches above, these amenity landings are intentionally located at the most prominent corner of the project, thereby elevating the communal good over the individual. Each amenity space prioritizes natural light and fresh air for residents while adding a perforated scrim to create a sense of interiority and shelter. Smaller moments exist in places like the lobby which contains a small built-in bookshelf which houses a residents’ library for sharing and discovery. The western exterior stair which is covered in a perforated scrim that provides shelter but also an opportunity for a vertical garden for residents to enjoy on their way between floors. Finally, the exterior material palette is composed primarily of metal panels which provide long life and durability while composite wood which clad the lowest level and soffits is composed of 95% recycled materials.
Design for Economy -
As Nashville’s rapid growth extends into Wedgewood-Houston the resulting wave of for-rent apartments and large townhomes has fueled displacement and limited pathways to ownership. In response, the Maslow team sought to counteract both the social and financial barriers facing the community by providing for sale units that range in size from 500 square feet to over 2,000 square feet.
This variety in unit type creates an opportunity for residents to enter the housing market affordably and later upsize without displacement, supporting adaptable living over time.
Economical design strategies also shape the public realm: where once there was no pedestrian experience, Maslow now acts as a crucial connector between Wedgewood-Houston’s residential heart and commercial spine, adding both social and economic value to the neighborhood.
Photo Captions
General Contractor
CITY Construction, LLC
Consultants
Structural Engineer
KPFF
Nick DeBlasis
615.4518725
Nick.DeBlasis@kpff.com
4101 Charlotte Avenue, Suite E210
Nashville, TN 37209
MEPF Engineer
Power Management Corporation
Jud Adams
615.383.6949
jadams@powermgmt.com
60 Music Square E, Suite 300
Nashville, TN 37203
Civil Engineer
BCA – Barge Civil
John Gore
615.324.4225
jgore@bcacivil.com
6606 Charlotte Pike, Suite 210
Nashville, TN 37203
Landscape Architecture
Firma Landscape Architecture
Scott Dismukes
610.316.2813
scott@firmastudio.com
507 Hagan Street
Nashville, TN 37203
Photography Credit
© McGinn Photography

