New Point of View
Megan Glenn Architecture
New Point of View is a single family residence incorporating biophilic and aging in place design concepts while exploring moments of groundedness and airiness.
Awards Year 2024 |
Project Statement
The initial idea for this retreat first came about with a family that dreamt of a place that they could ease into their retirement days. Tucked away in the secluded area of Beersheba Springs, Tennessee (down the road from a couple of generational family homes), a site came available with a breathtaking view. The owners had a vision that the home would maximize the experience of the site's captivating scenery while creating a haven for their extended family to gather.
.
The initial home design discussion began with a few priorities: placing the house as close to the cliff edge as possible, creating a home that feels connected with the surrounding nature, and laying out a floor plan that was receptive to site constraints and accommodating guests, children and grandchildren.
.
The direction of the design was to compliment the lightness of the views from the cliff edge while simultaneously grounding and connecting the home with nature of the site. The design challenge was furthered with the concept of aging in place, utilizing a large single-story footprint of nearly 5,900 SF (includes porches and workshop) and prioritizing natural light and views.
.
Our program included:
Entry
Family / Informal Dining / Kitchen
Screened Porch
Uncovered, cantilever deck
Pantry / scullery
Laundry
Mud area
Powder bath
Primary bedroom wing with en suite and study looking eastward
Guest bedroom with en suite
Bunk room with large shared hallway bathroom, built-in bunk beds, and hidden play area above closets
Detached workshop
Framework for Design Excellence Narrative
- Resources - The exterior materials were selected to reduce the amount of exterior maintenance for the homeowners over time. The Kebony wood exterior was utilized for its sustainability, natural aging color, low maintenance, and nature of deterring carpenter bees. The stone was locally sourced in an effort to tie back to the area. Other exterior materials selected for their longevity, low maintenance, or energy performance include high performance glazing, composite decking, stainless steel railings, metal panel, standing seam metal roofing, and powder coated, corrugated metal siding. The interior continues the use of stained wood at surfaces most often touched (cabinetry, doors, baseboards) in an effort to also the maintenance of painting over time (in addition to its appealing aesthetic). On site rocks were reused at the front entry garden.
- Well being - A goal of the design was for the homeowners to connect with the outdoors in as many spaces as possible. Every space has a window with a view or looking up into the canopy of the trees, except for the two bedroom hallways. This allows for natural daylighting through a majority of the home. The materiality of the interior was to be reflective of the nature beyond. The exterior wood and stone were brought to the interior, along with mixing tile and stone mimicking colors of the moss and foliage on site. The home was also planned to have age in place features with a single story floor plan, a ramped secondary entry to the mud hall, a zero entry shower to accommodate wheelchair turnaround, lever handles, curbless transitions between porches and interior space, etc.
- Integration - This home embodies peacefulness and energy as an extension of the surrounding nature. Whether you are opening doors and windows to capture the right breeze through the house, to moving throughout the house to bask in the natural light, to being consumed by an exhilarating view from the edge of the cantilever deck, to the nestled moments within the trees of the guest bedrooms - the home has many unique moments and connections with the surrounding site to where you always feel a part of the outdoors. The materiality further amplifies this feeling from the visual soundness of the interior finish selections to the actual audible quietness the natural materials bring into the home. The floor plan takes an approach with a wandering path through spaces that feels exciting yet also creates opportunity for sound to travel in gathering areas and to fall quiet in other more private spaces.
Photo Captions
1. INITIAL SITE DETAILS: Initial site views and nearby rock formations.
.
1. SITE PLAN WITH INITIAL CONCEPT DIAGRAMS: The site opportunities and constraints were first defined by the cliff edges, which are positioned on two sides of the house. One cliff edge looks across the large, open valley, while the other looks down into a shady ravine. The initial approach was for the home to appear camouflaged into the surrounding rocks and trees with the exterior finish selections. As you moved closer to the entry, you would have a moment of complete transparency, looking through the front door all the way to the other side of the valley.
.
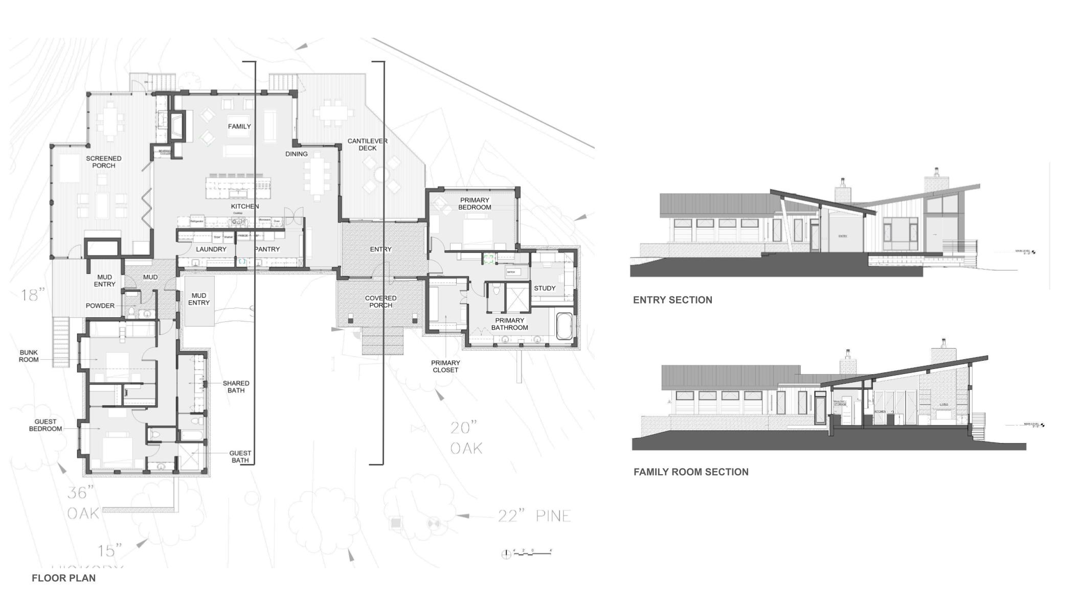
1. FLOOR PLAN AND SECTIONS: As with the winding and trickling nature of the site, the path from the entry through the family room unhurriedly flows through the open spaces, absorbing the beauty beyond the home. For the more private areas of the home, the paths are laid out in a more efficient manner with double loaded hallways and cabinetry layouts. To signify prominence with the rooflines, the covered entry reverses the roof slope of the adjacent spaces.
.
1. ENTRY VIEW - ROOF AND STONE BASE LINES: The concept of groundedness versus airiness is utilized in the proportion of the exterior material finishes and height of the structure. To give the base of the house a heavier feeling, the top of stone was brought up to the bottom of the counter height windows at the entry side. To not let the structure feel overbearing in size, a low-sloped, metal roof was incorporated.
.
1. ENTRY PLAZA: The home wraps a front parking area and creates an initial material connection to the property. The front entry stair is the main entry, while the ramped entry meets the mud area (in consideration of aging in place for the homeowners). Large rocks from the site are incorporated into the surrounding landscaping. The initial goal was for the plaza to feel cozy, settled and contained.
.
1. ENTRY MOMENT: The large covered porch combines a light filled entryway juxtaposed with the heaviness of the adjacent exterior walls - creating a moment of drama and sensation. For the indoor / outdoor feeling to be more seamless, exterior wood ceilings and stone pavers were continued into the interiors in selected areas.
.
1. STRUCTURAL CONNECTION WITH SITE: With the closeness to the cliff edge, the foundations were embedded into the existing rock. In designing against an irregular edge, site challenges were met with cantilevered spaces and decks along with a lower stone patio, which furthered the feeling of the home as a tree house. Forms begin to mimic nature of the site’s cantilevered rocks and overlapping growth.
.
1. CANTILEVER DECK: The goal was to maximize the experience of the views while also contradicting the initial rested feelings of the house exterior with an exhilarating moment of the cantilevered deck edge.
.
1. CANTILEVER DECK AND LOWER PATIO: In efforts of layering outdoor spaces at the cliff edge, the cantilever deck spills down into a lower patio area of locally sourced stone.
.
1. EXTERIOR MATERIALITY: In an effort for low-maintenance and high durability of the exterior, the finish selections included a locally sourced stone base and a sustainable wood cladding (also chosen for its color and ability to deter carpenter bees). These selections also gave a cohesive look and feel in regards to the surrounding site. For the deck and screened porch, engineered composite decking and stainless steel railings minimize the need for future painting and staining while continuing the quiet aesthetic of the architectural design.. To provide orchestrated breaks in the wood and stone exterior, metal clad cantilevers and step-backs ripple throughout the perimeter, and further balance the darkness of the roof and window colors. . The detached workshop leans more into the darker metal with wood accent to tie back visually to the home, while utilizing more a more utilitarian exterior with the corrugated metal exterior with a powder coated finish.
.
1. LIVING SPACES: The family room, kitchen and informal dining areas are open concept to allow for wider expanses of views to the valley and woods beyond. Wood of the exterior soffits carries to the interior to give the high ceiling a cozier feeling. Thinner lighting selections were made to not block the views. As a thoughtful tie-in to the site, the more unique pieces of stone at the fireplaces are pieces of stone found on site.
.
1. INTERIOR MATERIALITY: The initial interior color pallet began with inspiration from the existing moss covered rocks - mixing blues, greens, creams, and tans. This is first seen in the kitchen and powder room stone, and then moves into the bathrooms. The varying wood tones help create a nestled feeling without a heaviness.
.
1. SCREENED PORCH: Laid out as a second living space, the screened porch is occupied nearly as often as the interior family spaces. Positioned next to the ravine cliff edge, this porch is mostly surrounded by trees and often catches breeze from the west and from below, making it even more enjoyable in the hot summer months. On the cooler days, the wood-burning fireplace and heat-radiant light fixtures keep the family gathering here year round.
.
1. OWNERS’ WING: The owners always envisioned a bedroom that felt like it was completely outdoors and an office that started the morning with an eastern view. To give the owners a completely private zone, their bedroom, office and bathroom all branch off of the owners’ hallway. At the bedroom, automated black-out shades are built-in for the ability to sleep-in without the morning light. In an effort to echo the benefits of being out in surrounding nature, almost every space in the house looks into the trees or the valley. Spaces without windows play up the greens, blues, and browns of the surrounding site. All of this effort is with the underlying concept of biophilic design in visually connecting with nature as a benefit of health and wellness.
.
1. GUEST WING: Located towards the front of the house (south side), the guest wing runs between the wooded area and the parking area. To amplify greenery while shielding unwanted views, transom windows were positioned in the bathrooms to look into the surrounding trees. At the guest bedroom and the bunk room, a taller window ensemble, at a large window seat, reiterates the verticality of the room and the trees beyond. For an efficient use of space, storage is built in throughout rooms. A hidden kids area is built-in above the walk-in closets and accessed through a ladder in the kid’s closet.
General Contractor
Blue Oak Projects
Consultants
Interior Designer: Charles Loyd Co.
Structural Engineer: CSA Nashville / Kidwell Scott Engineering
Contractor: Blue Oak Projects
Photography Credit
Photo 1: Megan Glenn Architecture
Photos 4 - 15: Studio Buell / Tina Cornett

